Vybírejte z nabídky 37 002 nemovitostí od 813 realitních kanceláří
lupa mobilní menu
Přehled nemovitostí: prodej domy > rodinné domy > Újezdec Zpět na přehled nabídek

Venkovská usedlost Újezdec, ráj v předhůří Šumavy

Prodejce

Makléř: Viktorin David

Telefon: 420 775 ...

E-mail: david.vi ...

Zobrazit celý kontakt

prodej

Újezdec (okres Prachatice)

Domy, Rodinné domy

972794

08.01.2026

2

osobní

9 910 m2

550 m2

E - Nehospodárná

Cena: 11550000 CZK / objekt
Prodejce

Makléř: Viktorin David

Telefon: 420 775 ...

E-mail: david.vi ...

Zobrazit celý kontakt
Poslat dotaz k nabídce
Zásady používání osobních údajů

Nemovitost nabízí

/loga_velka/9601.webp

CENTURY 21 All Inclusive Estates

náměstí 28. dubna 2/1069, Brno

www.century21.cz/kancelar/allinclusive

Zobrazit kontakt na RK

Zobrazit všechny nabídky RK

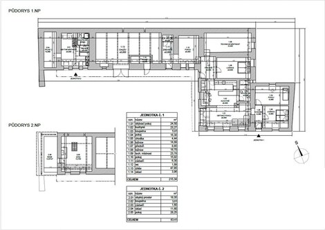
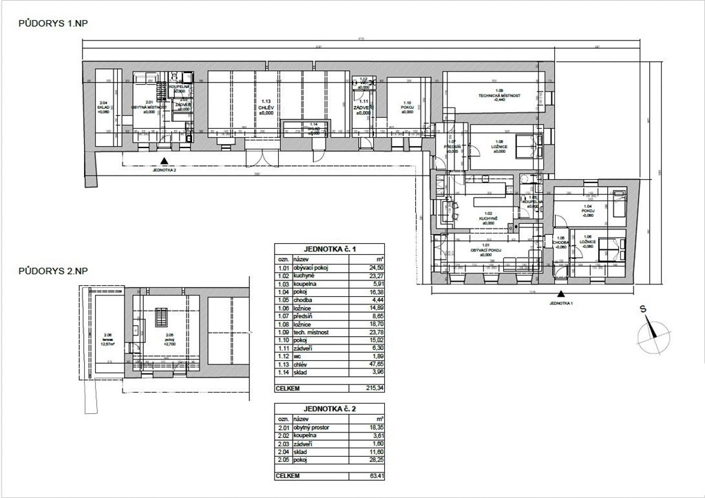
Venkovská usedlost s duší - Újezdec u Vlachova Březí Hledáte klidné místo, které má duši? Místo, kde vás ráno budí šum stromů, večer doprovází vůně ohně a nad hlavou září hvězdy? V Újezdci, malebné vesnici jen 14 km od Prachatic a 3 km od města Vlachovo Březí, nabízíme jedinečnou venkovskou usedlost, která vás okouzlí atmosférou i potenciálem. Na pozemcích o celkové výměře 9 910 m2 se rozkládá uzavřený dvůr, dvě samostatné bytové jednotky, stodola, prostorná půda, garáž a udržovaná zahrada s ovocnými stromy. Zastavěná plocha činí 475 m2. Dispozice a možnosti využití: Hlavní obytná jednotka 5+kk (215 m2) s krbem v obýváku Samostatná jednotka 2+kk (63 m2) s mezonetovým spaním, koupelnou se sprchovým koutem, wc, terasou. Stodola cca 74 m2 s přivedenou elektřinou Prostorná půda vhodná k přestavbě Upravený dvůr ideální pro relaxaci, bazén nebo letní večery u ohně Garáž a další technické zázemí Technické zázemí: Vytápění moderním kotlem na tuhá paliva s automatickým zásobníkem napojeným na ústřední topení Krb v hlavním obývacím prostoru Zdroj teplé vody: elektrický bojler Internet: Starnet Odpad řešen septikem Pozemky a potenciál: Součástí je okrasná zahrada s plně vzrostlými ovocnými stromy (995 m2) a louka o výměře 8 192 m2, která je dle územního plánu převoditelná na stavební pozemek. Nabízí se tak široké spektrum využití - od chovu koní, biofarmaření, glampingu, komunitního centra či školky v přírodě až po developerský projekt (tiny houses, rekreační chatky apod.). Půda je bez chemie, louky i dvůr poskytují naprosté soukromí. Usedlost je ideálním místem pro každého, kdo touží po vlastním světě v souladu s přírodou - ať už hledáte klidné rodinné bydlení, víkendový únik z města nebo prostor pro podnikání. Lokalita a občanská vybavenost: Újezdec je malá, klidná vesnička bezprostředně sousedící s městem Vlachovo Březí, kde najdete kompletní občanskou vybavenost: mateřskou a základní školu, soukromý pivovar Březí koza, pekárnu Cais, řezníka Zdeňka, poštu, Coop, cukrárnu, zámek, restaurace, hospody, stavebniny i květinářství. Újezdec je živá obec s vlastním obecním úřadem, který pravidelně pořádá kulturní a společenské akce pro místní i návštěvníky. Jen 100 metrů od usedlosti se nachází autobusová zastávka s přímými spoji do Prahy, Strakonic i Prachatic. V okolí najdete bohatý kulturní život, rozlehlé lesy plné hub a borůvek, rybníky a řeku Volyňku, která potěší každého rybáře. Nechybí ani značené cyklo a turistické trasy, a pokud máte rádi zimní sporty, do půl hodiny autem se dostanete k lyžařským areálům jako Libín, Kvilda nebo Mitterdorf v nádherném prostředí Šumavy.



Nahoru