Vybírejte z nabídky 36 987 nemovitostí od 816 realitních kanceláří
lupa mobilní menu
Přehled nemovitostí: prodej domy > rodinné domy > Pražmo Zpět na přehled nabídek

Rodinný dům, prodej, Pražmo, Frýdek-Místek

Prodejce

Makléř: Vladěna Di Brazza

Telefon: 800 103 ...

E-mail: zakaznic ...

Zobrazit celý kontakt

prodej

Pražmo (okres Frýdek-Místek)

Domy, Rodinné domy

131490

09.01.2026

2

4 419 m2

neuvedeno

G - Mimořádně nehospodárná

Cena: na dotaz v RK
Prodejce

Makléř: Vladěna Di Brazza

Telefon: 800 103 ...

E-mail: zakaznic ...

Zobrazit celý kontakt
Poslat dotaz k nabídce
Zásady používání osobních údajů

Nemovitost nabízí

/loga_velka/1509.webp

Realitní kancelář STING, s.r.o.

1.máje 540, 739 61 Třinec

www.rksting.cz

Zobrazit kontakt na RK

Zobrazit všechny nabídky RK

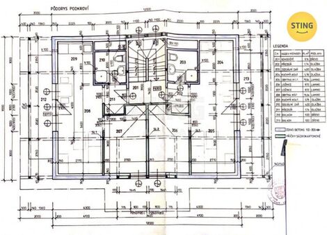
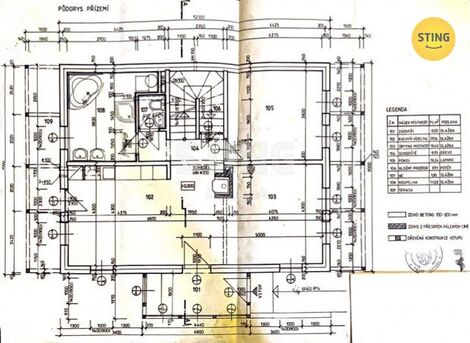
Hledáte ideální domov pro svou rodinu v klidném prostředí, obklopený přírodou a s výbornou dostupností do měst? Exkluzivně nabízíme k prodeji rodinný dům v obci Pražmo, která se nachází ve vyhledávané lokalitě CHKO Beskydy. V přízemí domu najdete prostorný obývací pokoj s krbem, který navazuje na moderní, plně vybavenou kuchyň, s dostatkem úložného prostoru a pracovní plochy. Z kuchyně je přímý vstup na terasu s pergolou, ideální místo pro venkovní posezení s výhledem na rozlehlou zahradu o celkové ploše 4419 m2 se zahradním domkem a garáží, osázenou vzrostlými stromy zajišťujícími soukromí. V prvním patře domu se nachází dvě samostatné jednotky. Každá jednotka disponuje kuchyňským koutem, obývacím pokojem se vstupem na vlastní balkonovou terasu s výhledem do přírody, ložnicí, koupelnou a toaletou. Tyto jednotky jsou ideální pro vícegenerační bydlení nebo jako prostor pro hosty. Vytápění domu je zajištěno krbovými kamny s teplovodním výměníkem, která ohřívají vodu pro radiátory a podlahové topení, což zajišťuje efektivní vytápění, el. bojlery pro ohřev vody. Dům je napojen na místní kanalizaci a vodovod. Pro více informací a prohlídku kontaktujte makléře. Do konce ledna 2026 nabízíme prostřednictvím našeho partnera úrokové sazby od 4,29 % p.a. Více informací Vám sdělí náš specialista na prohlídce.




Prodej rodinného domu Pražmo na Eurobydleni.cz


Nahoru