Vybírejte z nabídky 38 886 nemovitostí od 774 realitních kanceláří
lupa mobilní menu
Přehled nemovitostí: prodej domy > rodinné domy > Třebíč Zpět na přehled nabídek

Prodej rodinného domu 75 m2, Třebíč - Borovina

Prodejce

Makléř: Přibyl Aleš

Telefon: 605 905 ...

E-mail: pribyl@t ...

Zobrazit celý kontakt

prodej

Třebíč (okres Třebíč)

Koželužská

Domy, Rodinné domy

00054

04.05.2026

61 m2

75 m2

G - Mimořádně nehospodárná

Cena: 4350000 CZK / objekt
Poznámka k ceně: včetně advokátní úschovy a právního poradenství, včetně provize 1
Prodejce

Makléř: Přibyl Aleš

Telefon: 605 905 ...

E-mail: pribyl@t ...

Zobrazit celý kontakt
Poslat dotaz k nabídce
Zásady používání osobních údajů

Nemovitost nabízí

/images/img-no-foto-small.png

Tamino s.r.o.

Družstevní 1229/51, 67401 Třebíč

www.tamino.cz

Zobrazit kontakt na RK

Zobrazit všechny nabídky RK

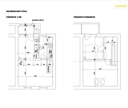
Rodinný dům k rekonstrukci s projektem | Koželužská 1016/13 Nabízíme k prodeji rodinný dům z roku 1930, který je kompletně připravený na rekonstrukci podle vlastních představ nového majitele. Objekt je vyklizený, stavebně „odstrojený“ a připravený na další fázi prací bez nutnosti bourání a likvidace původních konstrukcí. Velkým benefitem je klidný dvorek s krásným rybníkem, který nabízí jedinečnou atmosféru pro ranní kávu, relax, rybolov i letní koupání. Nádherný výhled a soukromí dělají z tohoto místa skutečný klenot. Hlavní výhody dům je zcela vyklizený odstraněné původní omítky - zdivo je odkryté podlahy vykopané a připravené na izolace kompletní zaměření a schválený projekt (stačí podat žádost na stavební úřad) vyfrézovaný komín s nerezovou vložkou plastová okna s dvojskly dům je zateplený jedinečný dvorek s rybníkem - káva, koupání, rybolov, relax ideální stav pro okamžité zahájení rekonstrukce Stavební povolení zatím nebylo vydáno. Základní informace Adresa: Koželužská 1016/13 Rok výstavby: 1930 Cena včetně provize: 4 350 000 Kč Dispozice a plochy Dispozice: 3+1 Zastavěná plocha: 61 m2 Podlahová plocha: 74,5 m2 (dle projektu) Půda: není započítána ve výměře - možnost dodělání úložného prostoru Balkon: možnost dodělání Parkování: parkovací místo před domem Vedlejší stavba: kůlna 11 m2 Technické informace Vytápění: není instalováno Rozvody: kompletně odstraněny z hlavního jističe je vyveden jeden kabel pro napájení elektrického nářadí Inženýrské sítě Elektřina: 230 V Voda: veřejný vodovod Kanalizace: veřejná Plyn: ano Internet: momentálně nezaveden Pozemek a exteriér Dvorek: klidový prostor s rybníkem a nádherným výhledem Zahrada: není oficiálně vedena Příjezdová komunikace: obecní, přímo před domem (1 auto) Vedlejší stavby: kůlna 11 m2 Shrnutí Nemovitost nabízí výjimečné spojení technicky připraveného domu k rekonstrukci a relaxačního dvorku s rybníkem, což je v této lokalitě naprosto ojedinělé. Ideální volba pro ty, kteří chtějí vytvořit moderní bydlení s atmosférou a výhledem.



Nahoru