Pronájem, Byty 2+kk, 50 m2 Jablůnka.
Makléř: Ing. Vymětalíková Adéla
Telefon: 420 603 ...
E-mail: adela.vy ...
Zobrazit celý kontaktTelefon: 420 603 885 715
E-mail: adela.vymetalikova@century21.cz
pronájem
972754
12.01.2026
3 (dům má 3 podlaží)
osobní
50 m2
50 m2
G - Mimořádně nehospodárná
Makléř: Ing. Vymětalíková Adéla
Telefon: 420 603 ...
E-mail: adela.vy ...
Zobrazit celý kontaktTelefon: 420 603 885 715
E-mail: adela.vymetalikova@century21.cz
Nemovitost nabízí
CENTURY 21 3D Reality
Gregorova 1412/12, 741 01 Nový Jičín
www.century21.cz/kancelar-3d-reality
Zobrazit kontakt na RKvasrealitnipartner@century21.cz
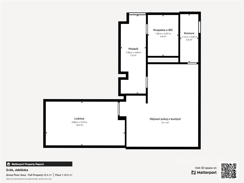
Century21 3D Reality Vám nabízí k pronájmu krásný slunný byt 2+kk/balkon o výměře 50 m2 v klidné části obce Jablůnka. Byt se nachází ve 3. p. cihlového domu. Kuchyňská linka s vestavěnými spotřebiči (myčka, horkovzdušná trouba), lednicí s mrazákem, koupelna s vanou a toaletou. Obývací pokoj je zařízen stolkem pod televizi. V ložnici je k dispozici šatní skříň a komoda. Po stávajícím nájemci je v případě zájmu možné ponechat pračku. Byt má prostornou komoru, ze které se vchází na balkon. Dům je po revitalizaci. Byt je vhodný pro 12 osoby. Ne zvířata. Je možné se nastěhovat od 1.2.2026, po dohodě případně i dříve. Majitel požaduje nájemné 10.500 Kč plus zálohy na služby ve výši 3.300, Kč/měsíčně (elektřina, plyn, vodné a stočné). Kauce a provize ve výši jednoho nájemného včetně záloh na služby (13.800, Kč). Autobusová zastávka směr Vsetín a Valašské Meziříčí cca 3 min. chůze. Velmi příjemná lokalita v blízkosti zeleně. Více informací u makléře.
Pronájem bytu 2+kk Poličná u Valašského Meziříčí
Nabízíme k pronájmu byt o dispozici 2+kk v Poličné u Valašského Meziříčí. Nově zbudovaný byt s podlahovým vytápěním o ploše 48 m2 se se nachází v…
Pronájem, Byt 2+kk, Valašské Meziříčí
Nabízíme k podnájmu moderní a nadstandardně vybavený byt 2+kk po kompletní rekonstrukci, umístěný v přízemí cihlového domu na ulici Křižná ve…