Vybírejte z nabídky 36 824 nemovitostí od 816 realitních kanceláří
lupa mobilní menu
Přehled nemovitostí: prodej byty > 3+kk > Havlíčkův Brod Zpět na přehled nabídek

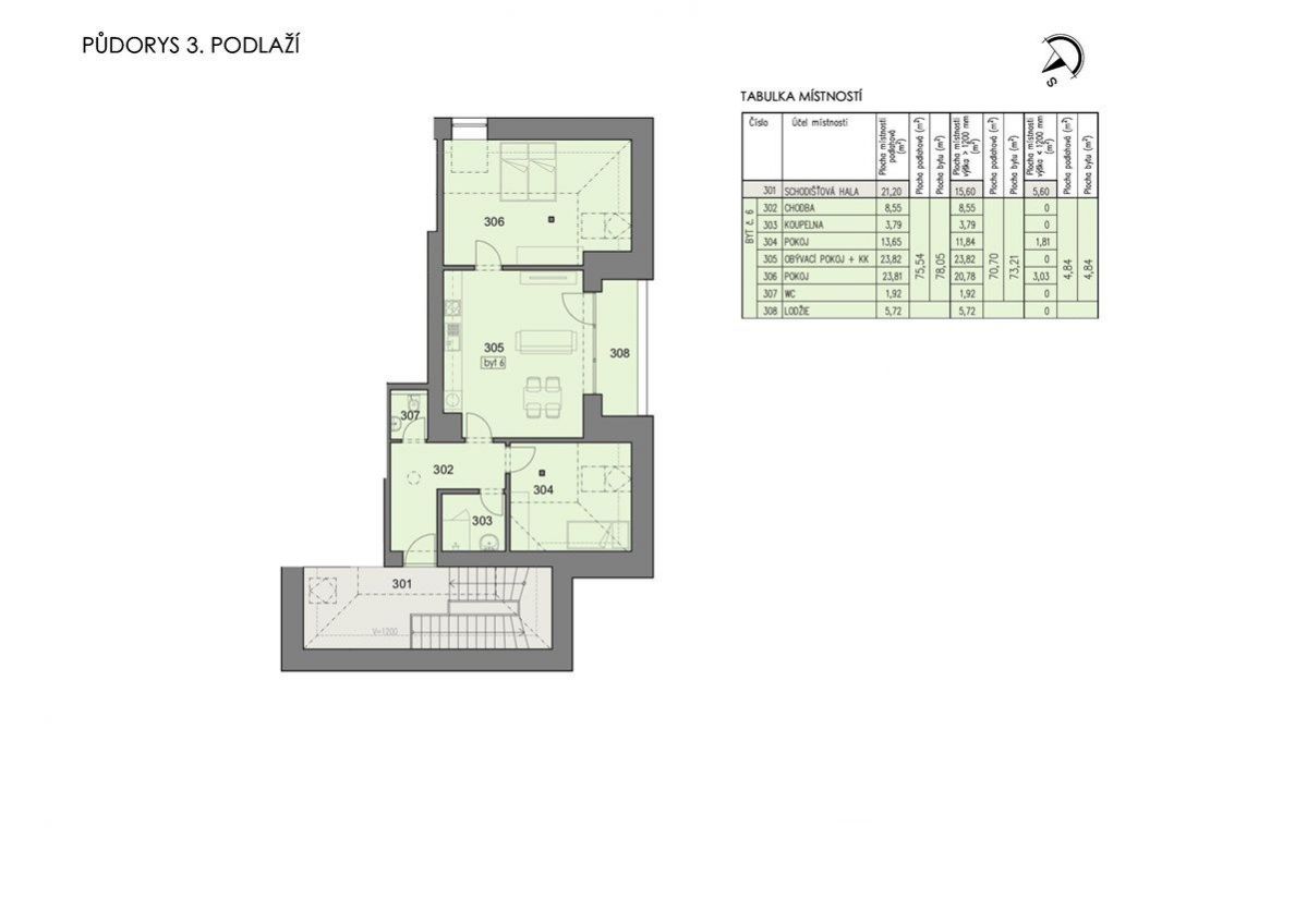
Prodej bytu 3+kk 77,68 m, Havlíčkův Brod

Prodejce

Makléř: Tomáš Semrád

Telefon: 602 288 ...

E-mail: tomas.se ...

Zobrazit celý kontakt

prodej

Havlíčkův Brod (okres Havlíčkův Brod)

Rozkošská

Byty, Byt 3+kk

2316/6

14.01.2026

2 (dům má 5 podlaží)

osobní

neuvedeno

neuvedeno

B - Velmi úsporná

Cena: 7092120 CZK / objekt
Prodejce

Makléř: Tomáš Semrád

Telefon: 602 288 ...

E-mail: tomas.se ...

Zobrazit celý kontakt
Poslat dotaz k nabídce
Zásady používání osobních údajů

Nemovitost nabízí

/loga_velka/10221.webp

EVROPA realitní kancelář

Václavské nám. 806/62, 110 00 Praha 1

www.rkevropa.cz

Zobrazit kontakt na RK

Zobrazit všechny nabídky RK

Hledáte moderní a nadčasové bydlení v klidné části města Havlíčkův Brod? Nabízíme k prodeji exkluzivní byt 3+kk o ploše 77,68 m, který je součástí pečlivě připravovaného developerského projektu s kompletní rekonstrukcí bytového domu. Rekonstrukce zahrnuje fasádu se zateplením, střešní konstrukci včetně krytiny, nová okna i společné prostory domu. Bytová jednotka č. 1 se nachází v 3. nadzemním podlaží bytového domu a díky jižní orientaci nabízí dostatek denního světla. Tento podkrovní byt bude dokončen ve vysokém standardu koupelna, kvalitní podlahové krytiny, interiérové dveře včetně zárubní. Samozřejmostí je možnost výběru materiálů a barevných provedení dle preferencí budoucího majitele. O komfort bydlení se postará teplovodní podlahové vytápění, vytápění i ohřev vody zajistí centrální plynový kotel v domě. V ceně je sklepní kóje a parkovací stání na vlastním pozemku. Předpokládaný termín dokončení: leden 2027. Energetická náročnost budovy: PENB třída B. Nemovitost je ideální volbou pro komfortní bydlení i jako dlouhodobá investice. V případě zájmu mě neváhejte kontaktovat.




Prodej bytu 3+kk Havlíčkův Brod na Eurobydleni.cz


Nahoru