Pronájem, Prostory a objekty pro obchod a služby, Praha 9
Makléř: Lukáš Petr
Telefon: 732 546 ...
E-mail: lukas.pe ...
Zobrazit celý kontaktTelefon: 732 546 330, 732 546 330
E-mail: lukas.petr@qara.cz
pronájem
Theinova
18492
16.01.2026
187 m2
C - Úsporná
Makléř: Lukáš Petr
Telefon: 732 546 ...
E-mail: lukas.pe ...
Zobrazit celý kontaktTelefon: 732 546 330, 732 546 330
E-mail: lukas.petr@qara.cz
Nemovitost nabízí
QARA s.r.o.
Šafaříkova 201/17, 120 00 Praha 2
Zobrazit kontakt na RK
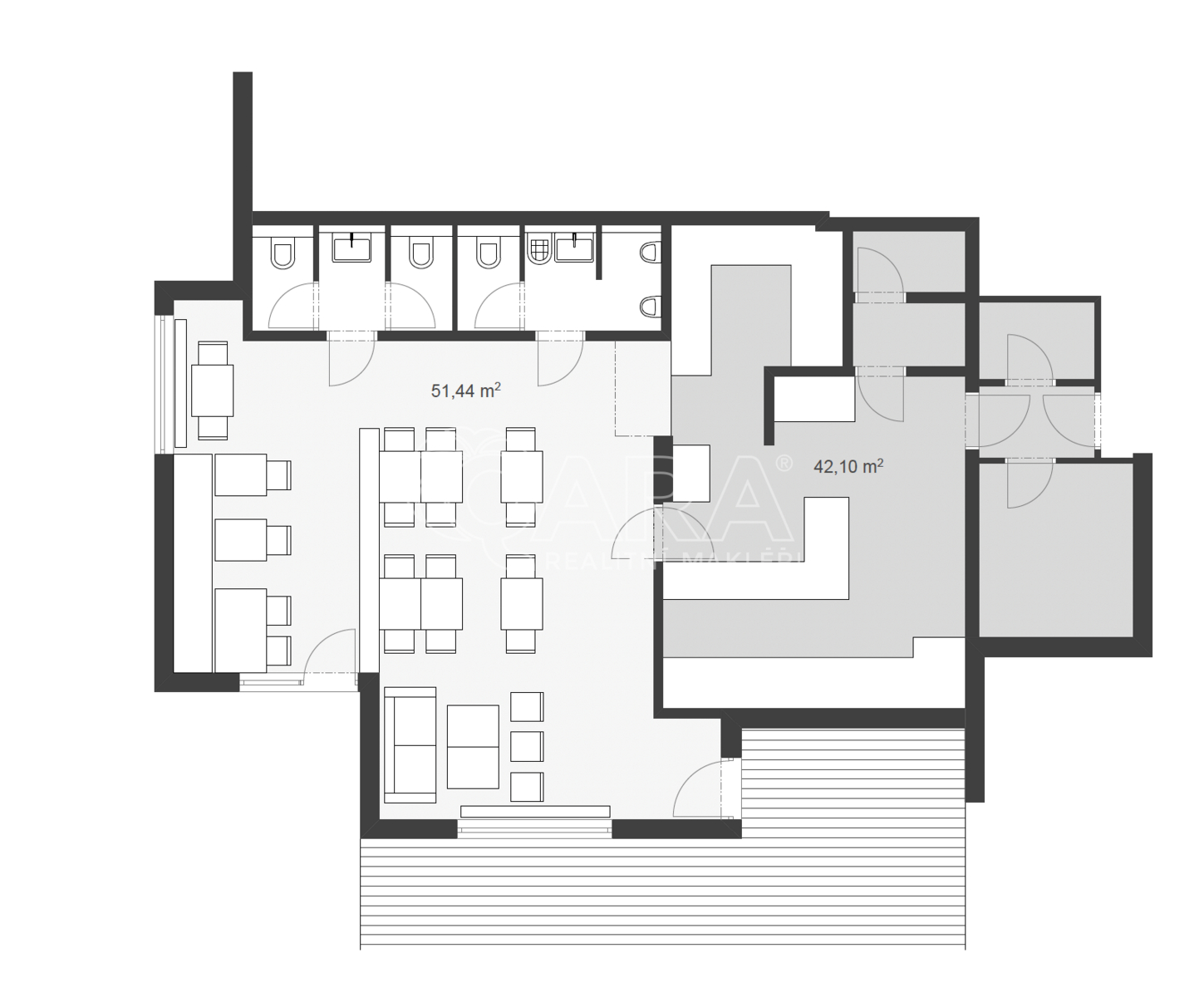
Restaurace v přízemí bytového domu v Čakovicích, pár kroků od čakovického zámku, parku a rybníka. Plně vybavený gastro provoz s vlastní předzahrádkou o ploše 69 m2, která je v osobním vlastnictví a je součástí nájmu. Prostor je kolaudovaný jako restaurace s kuchyní a připravený k rychlému převzetí. Hlavní prostor restaurace má 108,3 m2, doplněný o dvojici skladů (5,6 a 4 m2). Vstup i interiér jsou bezbariérové, k dispozici je také místo pro parkování jízdních kol a garážové stání pro jedno auto. Restaurace je kompletně vybavená - technologie, nábytek i zázemí. Provoz lze převzít v aktuální podobě, případně doplnit o pokladní systém, který je možné dodat. Instalovaný je také zabezpečovací systém Jablotron. Prostory jsou ideální pro stabilní gastro provoz - denní menu, večerní restauraci, kavárnu nebo rodinný podnik. Lokalita je obytná, sousedství tiché a stabilně frekventované díky poblíž umístěnému zámku a parku. Dispozice a plochy * Hlavní provozní plocha: 108,3 m2 * Sklad 1: 5,6 m2 * Sklad 2: 4 m2 * Předzahrádka: 69 m2 * Garážové stání pro 1 auto Finanční podmínky * Nájemné: 48 600 Kč / měsíc * Vratná kauce: 90 000 Kč * Odstupné za vybavení: 600 000 Kč * Provize realitní kanceláři: 48 600 Kč. * Poplatky dle skutečné spotřeby: * zálohy SVJ (topení, voda, úklid společných prostor atd.) * elektřina * pojištění * odvoz odpadu * volitelné služby: TV, OSA, internet, rozhlas, zabezpečení Prostor je volný ihned. Pro více informací mě neváhejte kontaktovat. Lukáš Petr
Pronájem, Prostory a objekty pro obchod a služby, Praha 3
Nabízíme k pronájmu obchodní prostory 376 m2 v žádané lokalitě administrativního komplexu Agora Flora. Prostory se nacházejí v přízemí domu v ulici…
Pronájem, Prostory a objekty pro obchod a služby, Praha 4
Dumrealit.cz Vám zprostředkuje exkluzivně pronájem zcela nového komerčního prostoru o velikosti 258,12 m2, v nově stavěné budově (PENB - B) přímo u…