Prodej obchodního objektu, 1381 m2, Zbraslavice
Makléř: Němec Michal
Telefon: 296 399 ...
E-mail: info@mmr ...
Zobrazit celý kontaktTelefon: 296 399 006
E-mail: info@mmreality.cz
prodej
Zbraslavice (okres Kutná Hora)
930310
osobní
1 381 m2
G - Mimořádně nehospodárná
Makléř: Němec Michal
Telefon: 296 399 ...
E-mail: info@mmr ...
Zobrazit celý kontaktTelefon: 296 399 006
E-mail: info@mmreality.cz
Nemovitost nabízí
M&M reality holding a.s.
Krakovská 1675/2, 110 00 Praha 1
Zobrazit kontakt na RK800 100 446
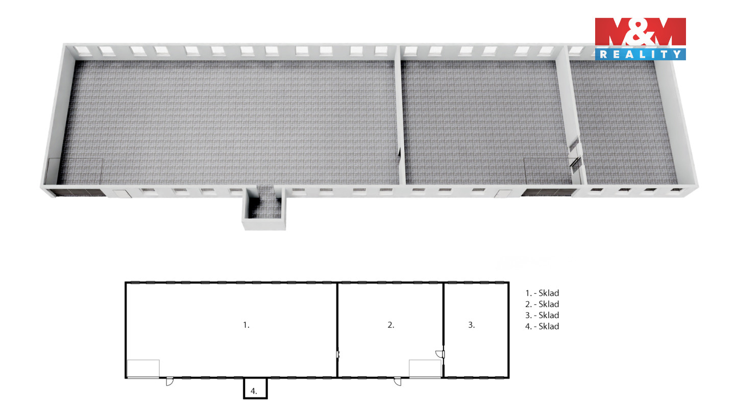
Unikátní výrobní a skladovací areál v okrajové části obce Zbraslavice zde nabízíme k prodeji. Je to ideální příležitost pro rozvoj Vašeho podnikání. Na rozlehlém pozemku o 7 699 m2 se nacházejí dvě moderní haly o celkové užitné ploše 1 381 m2, zahrnující kanceláře a zázemí. Areál disponuje základovou deskou připravenou pro další výstavbu haly o 264 m2. Cihlové stavby se zateplením zajišťují komfort a energetickou efektivitu. K vybavení patří dvě čističky odpadní vody, kaskádová tepelná čerpadla a fotovoltaická elektrárna (100 kW) s úložištěm 200 kW pro energetickou soběstačnost. Nabíjecí stanice pro dvě elektroauta je samozřejmostí. Udržovaná zeleň a ovocné stromy dotvářejí příjemné prostředí. Skvělá dostupnost na D1 a do Kolína dělá z tohoto areálu strategickou volbu. V ceně je také novostavba rodinného domu o dispozici 3kk a užitnou plochou 80m2, dům je kompletně zařízený a může sloužit pro majitele nebo správce. Kontaktujte nás pro více informací.
Prodej komerčního objektu, 106 m2, Zruč nad Sázavou
Exkluzivně nabízíme k prodeji jedinečnou investiční nemovitost v centru města Zruč nad Sázavou s výbornou dostupností do Prahy po dálnici D1.…
Prodej komerčního objektu s velkým potenciálem - Čáslav
Hledáte prostor pro své podnikání, který vás nebude omezovat? Nabízíme k prodeji variabilní dvoupodlažní komerční budovu v Čáslavi, která kombinuje…