Vybírejte z nabídky 36 426 nemovitostí od 815 realitních kanceláří
lupa mobilní menu
Přehled nemovitostí: pronájem byty > 3+kk > Most Zpět na přehled nabídek

Pronájem bytu 3+kk 62 m2 v Mostě

Prodejce

Makléř: Ing. Wohlová Martina

Telefon: 775 200 ...

E-mail: martina. ...

Zobrazit celý kontakt

pronájem

Most (okres Most)

Česká

Byty, Byt 3+kk

973351

20.01.2026

2 (dům má 8 podlaží)

družstevní

62 m2

62 m2

G - Mimořádně nehospodárná

Cena: 12600 CZK / objekt / měsíc
Prodejce

Makléř: Ing. Wohlová Martina

Telefon: 775 200 ...

E-mail: martina. ...

Zobrazit celý kontakt
Poslat dotaz k nabídce
Zásady používání osobních údajů

Nemovitost nabízí

/loga_velka/10058.webp

CENTURY 21 The Most Reality

U Věžových domů 2934/5, 434 01 Most

www.century21.cz/kancelar-the-most-reality

Zobrazit kontakt na RK

Zobrazit všechny nabídky RK

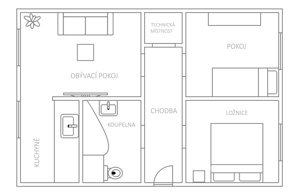
Ráda bych vám nabídla k dlouhodobému podnájmu hezký byt 3+kk o výměře 62 m2 v ulici Česká v Mostě. Jakmile vstoupíme do chodby, máme po pravé straně dvě samostatné místnosti. V ložnici je skříň. Vlevo se nachází koupelna s rohovou vanou, umyvadlem a toaletou. Naproti vstupním dveřím je technická místnost, kde je možné uložit velké množství věcí. Vedle této místnosti je velký světlý obývací pokoj s kuchyňským koutem. V kuchyni je kromě kuchyňské linky s elektrickým sporákem i lednice. V obýváku je konferenční stolek. V celém bytě jsou nové dveře a osvětlení. Dům je čistý a udržovaný. Pokoje jsou na fotografiích i vizualizovány pro lepší představu jak by mohly zařízené vypadat. Byt je volný, ihned k nastěhování. Náklady na bydlení jsou ve výši 12 600 Kč nájemné + služby 2 300, Kč/ osoba (další osoba + 700,Kč). Elektřina a plyn budou přepsány na nájemníka. Při podpisu nájemní smlouvy je požadována vratná kauce ve výši 15 000, Kč. Dále se skládá rezervační poplatek při podpisu rezervační smlouvy ve výši 12 600 + DPH). Nabídka platí pouze pro zájemce s pracovní smlouvou. V případě zájmu o prohlídku nebo o více informací kontaktujte, prosím, makléřku.



Nahoru