Prodej víceúčelové nemovitosti, Kraslice, ul. Dukelská
Makléř: Rédl Daniel
Telefon: 296 399 ...
E-mail: info@mmr ...
Zobrazit celý kontaktTelefon: 296 399 006
E-mail: info@mmreality.cz
prodej
Dukelská
884172
osobní
460 m2
650 m2
G - Mimořádně nehospodárná
Makléř: Rédl Daniel
Telefon: 296 399 ...
E-mail: info@mmr ...
Zobrazit celý kontaktTelefon: 296 399 006
E-mail: info@mmreality.cz
Nemovitost nabízí
M&M reality holding a.s.
Krakovská 1675/2, 110 00 Praha 1
Zobrazit kontakt na RK800 100 446
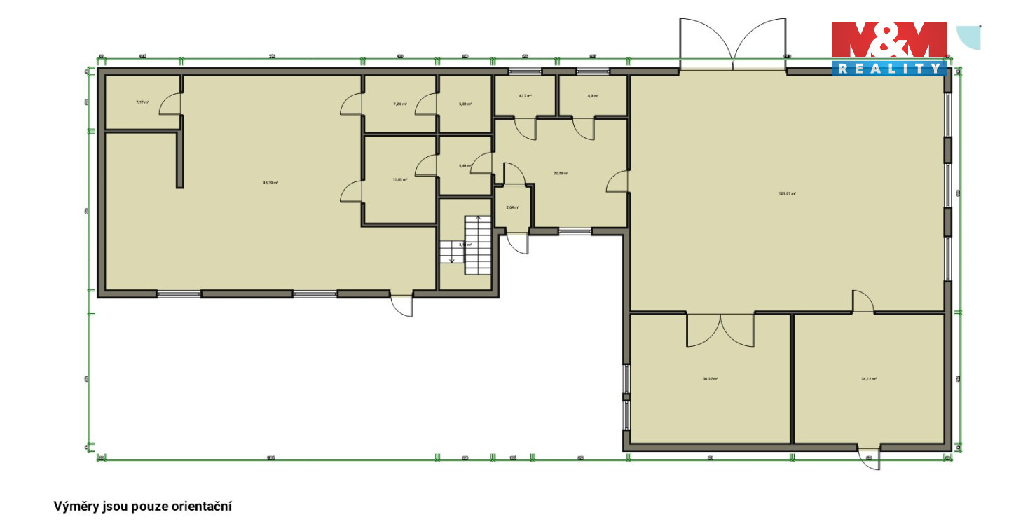
Prodej víceúčelové nemovitosti - investice a podnikání, Kraslice Nabízíme k prodeji soubor dvou budov v klidné části města Kraslice, který představuje atraktivní příležitost pro investory i podnikatele. První budova je dispozičně řešena jako dům se dvěma bytovými jednotkami, vhodný k okamžitému pronájmu nebo vlastnímu bydlení. Druhá budova je připravena k využití pro podnikání, skladování, dílnu či provozovnu a zároveň nabízí možnost vybudování dalších bytových jednotek, čímž lze významně navýšit investiční potenciál celé nemovitosti. Objekt byl v minulosti dlouhodobě pronajímán, což potvrzuje jeho schopnost generovat stabilní výnos. Nemovitost je napojena na veřejný vodovod a kanalizaci, vytápění zajišťuje plynový kotel, v jednom z objektů je navíc možnost vytápění krbem. Tato nabídka spojuje bydlení, podnikání i budoucí zhodnocení v jednom celku. Pro více informací a sjednání prohlídkového dne kontaktujte makléře. S financováním vám rád pomůže náš hypoteční specialista.
Prodej rodinného domu v Kraslicích, ul. Polní
Atmosféra starých kraslických uliček, odkud máte pár kroků do přírody i k hranici s Německem. Právě tady stojí cihlový rodinný dům, který čeká na…
Prodej rodinného domu, 219 m2, Kraslice, ul. Havlíčkova
Nabízíme prostorný rodinný dům z roku 1910, který prošel částečnými úpravami a je připraven k okamžitému užívání. V přízemí se nachází obývací pokoj…