Novostavba bytu 2kk s balkonem - Plzeň Skvrňany
Makléř: Kantner Jan
Telefon: 739 367 ...
E-mail: kantner@ ...
Zobrazit celý kontaktTelefon: 739 367 279
E-mail: kantner@pubec.cz
prodej
Na Okraji
21300JK-6
2 (dům má 0 podlaží)
osobní
49 m2
49 m2
B - Velmi úsporná
Makléř: Kantner Jan
Telefon: 739 367 ...
E-mail: kantner@ ...
Zobrazit celý kontaktTelefon: 739 367 279
E-mail: kantner@pubec.cz
Nemovitost nabízí
REALITNÍ KANCELÁŘ PUBEC, s.r.o.
Šafaříkovy sady 2455/5, 301 00 Plzeň
Zobrazit kontakt na RK377 226 767
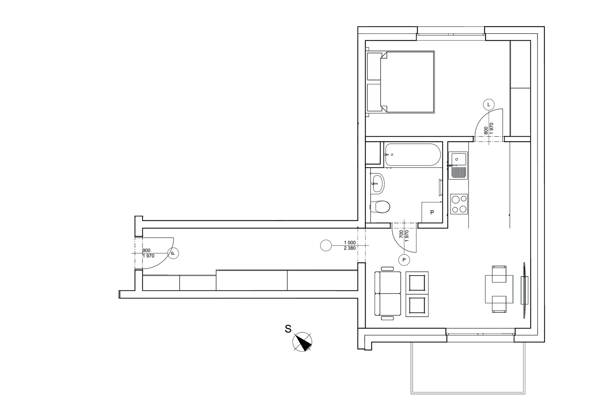
Máme pro Vás připraven nový projekt pod názvem „Byty Na Okraji“. Předmětná jednotka 2kk o výměře 49 m2 + balkon (5 m2) se bude nacházet ve 2. NP cihelného domu s výtahem. Orientace bytu - obývací pokoj s balkonem - jih - vnitroblok, ložnice - sever. Dům bude situován v lokalitě Předních Skvrňan a nabídne klidné místo spojené s dobrou dostupností centra města i nájezdu na páteřní infrastrukturu. Půjde o menší bytový dům zasazený do původní zástavby v ulici Na Okraji. Složen bude výhradně z bytových jednotek. Půjde zejména o malometrážní byty (1kk, 2kk) s podlahovou plochou od cca 30 m2 až do 60 m2. Téměř každý byt bude disponovat balkónem. V ceně bytu bude dokončení v daném standardu (bez kuchyňské linky a finálního osvětlení). Prezentované vizualizace se zařízením jsou pouze ilustrativní. Bytový dům je projektován jako nízkoenergetický, energetická třída B. Náklady na Vaše nové bydlení budou velmi nízké, což jistě v budoucnosti oceníte. Vytápění bude řešeno dálkově (Plzeňská Teplárna). Výstavba zahájena, předpokládané dokončení červen 2027. Pro bližší informace mne neváhejte kontaktovat.
Prodej zrekonstruovaného bytu 2+kk, 45 m2 s terasou 20 m2, Plzeň
Nabízíme k prodeji moderně zrekonstruovaný byt 2+kk o výměře 45 m2, který se nachází v přízemí revitalizovaného domu. Přístup je bezbariérový. …
Prodej prostorného cihlového bytu 2+kk po kompletní rekonstrukci v centru Plzně
Prodej prostorného bytu 2+kk po kompletní rekonstrukci v centru Plzně Hledáte prostorný byt v centru města, který by byl po rekonstrukci a ihned k…