Vybírejte z nabídky 36 327 nemovitostí od 792 realitních kanceláří
lupa mobilní menu
Přehled nemovitostí: prodej byty > 1+kk > Čeladná Zpět na přehled nabídek

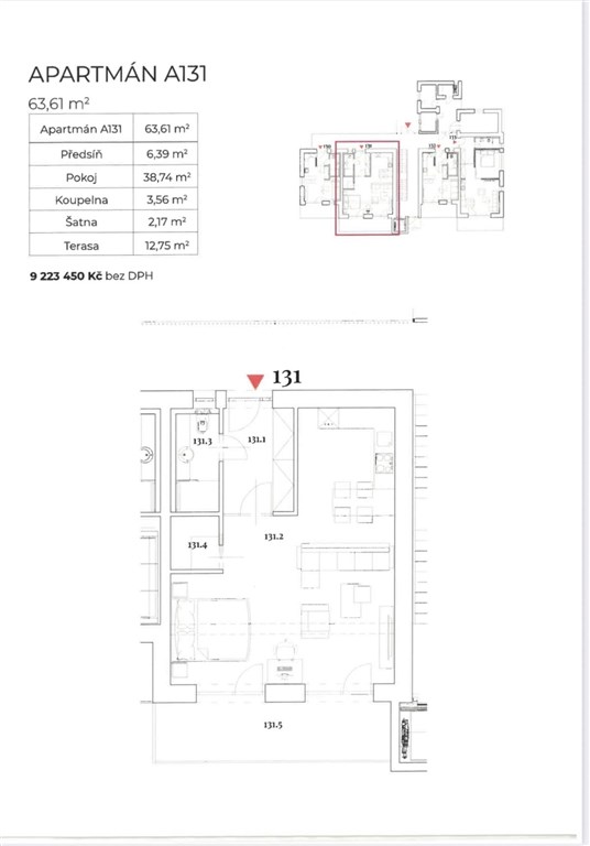
Čeladná 249, apartmá 131

Prodejce

Makléř: Juřena Milan

Telefon: 420 777 ...

E-mail: milan.ju ...

Zobrazit celý kontakt

prodej

Čeladná (okres Frýdek-Místek)

Byty, Byt 1+kk, garsonka

973442

13.02.2026

1 (dům má 3 podlaží)

osobní

63 m2

63 m2

B - Velmi úsporná

Cena: 9223450 CZK / objekt
Prodejce

Makléř: Juřena Milan

Telefon: 420 777 ...

E-mail: milan.ju ...

Zobrazit celý kontakt
Poslat dotaz k nabídce
Zásady používání osobních údajů

Nemovitost nabízí

/loga_velka/9601.webp

CENTURY 21 All Inclusive Estates

náměstí 28. dubna 2/1069, Brno

www.century21.cz/kancelar/allinclusive

Zobrazit kontakt na RK

Zobrazit všechny nabídky RK

Proměňte své finance v hotelový apartmán, který vám vydělává každý den. Investiční apartmá v Mövenpick Resort & Apartments Čeladná přináší pasivní příjem, růst hodnoty nemovitosti a 20 dní osobního pobytu ročně. Aparmtány nejsou určeny k bydlení ani soukromému pronájmu. Jedná se o investiční jednotky provozované resortem Mövenpick. Koupíte investiční jednotku, kterou kompletně provozuje resort Mövenpick. Vy získáváte každoroční podíl z výnosu - bez starostí, bez práce, bez správy. Čeladná je malebná vesnice v samém srdci Moravskoslezských Beskyd. Obklopují ji vrcholy Ondřejníku, Smrku, Malé a Velké Stolové a také Lysé hory. Historie obce sahá pravděpodobně do 15. století, první písemná zmínka pochází však až z roku 1581, kdy je uvedena v urbáři hukvaldského panství. Podle pověsti vznikl název obce od slova "čeládka" - tedy služebnictvo, které docházelo na Hukvaldy. Čeladná 249 je místem s více než stoletou historií, které bylo vždy spojováno s pohostinností, dobrým jídlem a pitím. Původní budova z roku 1908 prošla náročnou rekonstrukcí a v prosinci 2016 byla znovu otevřena. Restaurace a hotel dnes nabízí tradiční českou kuchyni v útulném a příjemném prostředí. Accor patří mezi největší a nejrespektovanější hotelové skupiny na světě. Sdružuje desítky globálních značek - včetně prémiového Mövenpicku - a zajišťuje špičkový provoz, vysokou obsazenost a kvalitní služby milionům hostů po celém světě. Pro investory to znamená profesionální management, mezinárodní standardy a maximální zhodnocení investice.



Nahoru