Prodej, Rodinný dům, Jaroměř
Makléř: Bc. Dominik Pařízek
Telefon: 732 757 ...
E-mail: dominik. ...
Zobrazit celý kontaktTelefon: 732 757 022
E-mail: dominik.parizek@qara.cz
prodej
Palackého
18475
2
238 m2
91 m2
G - Mimořádně nehospodárná
Makléř: Bc. Dominik Pařízek
Telefon: 732 757 ...
E-mail: dominik. ...
Zobrazit celý kontaktTelefon: 732 757 022
E-mail: dominik.parizek@qara.cz
Nemovitost nabízí
QARA s.r.o.
Šafaříkova 201/17, 120 00 Praha 2
Zobrazit kontakt na RK
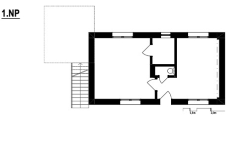
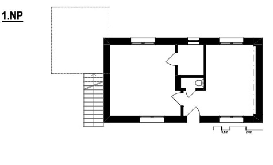
Dobrý den, v Jaroměři máte možnost koupit rodinný dům, který nabízí dvě možná využití. První si můžete vyřešit vlastní bydlení nebo druhá možnost jako investice do dvou bytových jednotek se samostatnými vstupy. Dům se nachází v ulici Palackého, nedaleko centra Jaroměře. I když se to na první pohled nezdá, interiér domu je předurčen ke kompletní rekonstrukci, oproti tomu fasáda, střecha a většina oken jsou po revitalizaci 10 let. Zastavěná plocha domu (64 m2) včetně ostatní plochy před domem činí 284 m2. V domě jsou aktuálně připravené prostory pro dva samostatné byty s teoretickou dispozicí 1+1 nebo 2+kk. Spodní byt [37 m2] má klenuté stropy, je orientován na východ i západ, a má zastřešený vstup, který je vhodný k venkovnímu posezení. Zavedena voda, odpad i elektřina. Přístup do horního bytu [54 m2] vede zastřešeným bočním schodištěm. Tento byt má okna orientovaná na západ a sever, není zde natažena voda a odpady. Lze zrekonstruovat a využít také půdní prostory, do kterých vede otevřený průlez. Vnitřním schodištěm by bylo možné byty propojit v jeden funkční celek. Dům je částečně podsklepený. Jaroměř kombinuje praktickou polohu s příjemným městským zázemím. Díky napojení na dálnici D11 se do Hradce Králové dostanete pohodlně během 15 minut, a díky obchvatu také pohodlně do Náchoda. Město nabízí široké spektrum služeb - školství, zdravotnictví, sport i kulturu - a jako bonus přidává atmosféru historické pevnosti Josefov, která je unikátní v celém regionu. Stavební pozemek o rozloze 1 080 m2 který je za domem a je součástí listu vlastnictví, není součástí prodeje. V případě zájmu a slušné nabídky se prodeji této parcely majitel nebrání. Pro sjednání prohlídky a zaslání více informací mě kontaktujte, budu se těšit.
Prodej rodinného domu, 220 m2, Jaroměř, ul. Palackého
Prodej prostorného dvojdomu 220 m2 v centru Jaroměře (část Jakubské Předměstí). 9 místností, 2 NP, smíšená konstrukce, pozemek 602 m2 s uzavřeným…
Prodej rodinného domu, 791 m2, Jaroměř, ul. Palackého
Exkluzivně nabízíme prostorný rodinný dům v centru Jaroměře, který je rozdělen na část bytovou a na část komerční. Cihlová nepodsklepená stavba s…