Praha, Chodská 1132108, pronájem 3+1
Makléř: Mgr. Móro Daniel
Telefon: 420 739 ...
E-mail: daniel.m ...
Zobrazit celý kontaktTelefon: 420 739 012 299
E-mail: daniel.moro@era-reality.cz
pronájem
Chodská
973727
18.02.2026
2 (dům má 6 podlaží)
osobní
110 m2
113 m2
G - Mimořádně nehospodárná
Makléř: Mgr. Móro Daniel
Telefon: 420 739 ...
E-mail: daniel.m ...
Zobrazit celý kontaktTelefon: 420 739 012 299
E-mail: daniel.moro@era-reality.cz
Nemovitost nabízí
ERA Estate A. Legal
U Rajské zahrady 1912/3, Praha
era-reality.cz/era-estate-a-legal/
Zobrazit kontakt na RK739 012 299
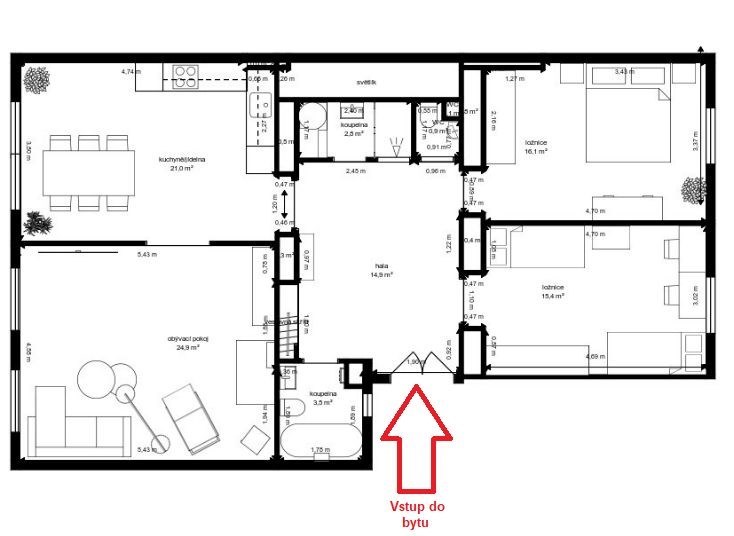
Dovolujeme si Vám nabídnout k pronájmu výjimečnou bytovou jednotku po právě dokončené, nadstandardní rekonstrukci, situovanou v jedné z nejžádanějších a nejklidnějších ulic pražských Vinohrad - v ulici Chodská. Tento reprezentativní byt o dispozici 3+1 a celkové podlahové ploše 113 m2 (včetně sklepa o velikosti 3 m2) se nachází ve 2. patře pečlivě udržovaného cihlového domu s výtahem. Dispozice bytu je doslova ideální - ložnice jsou orientovány do klidného vnitrobloku, zatímco obývací pokoj s kuchyní směřuje do klidné ulice Chodská. Interiér dále nabízí dvě prostorné neprůchozí ložnice, velkorysý obývací pokoj, plně vybavenou kuchyni na míru, dvě koupelny různé velikosti, samostatné WC pro hosty a reprezentativní vstupní halu, která podtrhuje vzdušnost a noblesu celého prostoru. Byt prošel kompletní a finančně náročnou rekonstrukcí, při níž byl kladen důraz na zachování původních historických prvků v harmonické kombinaci s moderním designem, kvalitními materiály a současnými technologiemi. Výsledkem je elegantní interiér s nadčasovým charakterem, splňující vysoké nároky na komfortní městské bydlení. Průkaz energetické náročnosti budovy (PENB) je aktuálně ve fázi zpracování, uvedená hodnota proto zatím není k dispozici. Rezidenční lokalita Vinohrad nabízí kompletní občanskou vybavenost, vyhlášené restaurace a kavárny, množství zeleně a zároveň vynikající dopravní dostupnost do centra města. Pro více informací či sjednání soukromé prohlídky kontaktujte prosím realitní kancelář.
Pronájem, Byt 3+1, Praha 1
Rádi bychom Vám nabídli k pronájmu světlý nezařízený byt 3+1 o výměře 117 m2 s terasou do vnitrobloku o výměře 56 m2. Byt je situována v 6. patře…
Pronájem bytu 3+1, Rosečská, Krč, 28000 Kč/měs, 84 m2
K dlouhodobému podnájmu nabízíme moderní a světlý byt o dispozici 3+1 v klidné lokalitě Praha 4- Krč. Byt o celkové výměře 84 m2 se nachází v 2.…