Prodej chaty 58 m2, Na Hujaru, Babice
Makléř: Dvořák Petr
Telefon: 732 903 ...
E-mail: dvorak@r ...
Zobrazit celý kontaktTelefon: 732 903 030
E-mail: dvorak@realitydvorak.cz
prodej
Na Hujaru
00864
07.05.2026
1
470 m2
58 m2
G - Mimořádně nehospodárná
Makléř: Dvořák Petr
Telefon: 732 903 ...
E-mail: dvorak@r ...
Zobrazit celý kontaktTelefon: 732 903 030
E-mail: dvorak@realitydvorak.cz
Nemovitost nabízí
Reality Dvořák
Dlouhá 705/16, Praha 1
Zobrazit kontakt na RK732 903 030
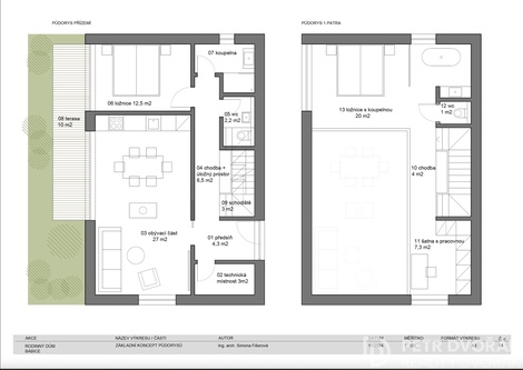
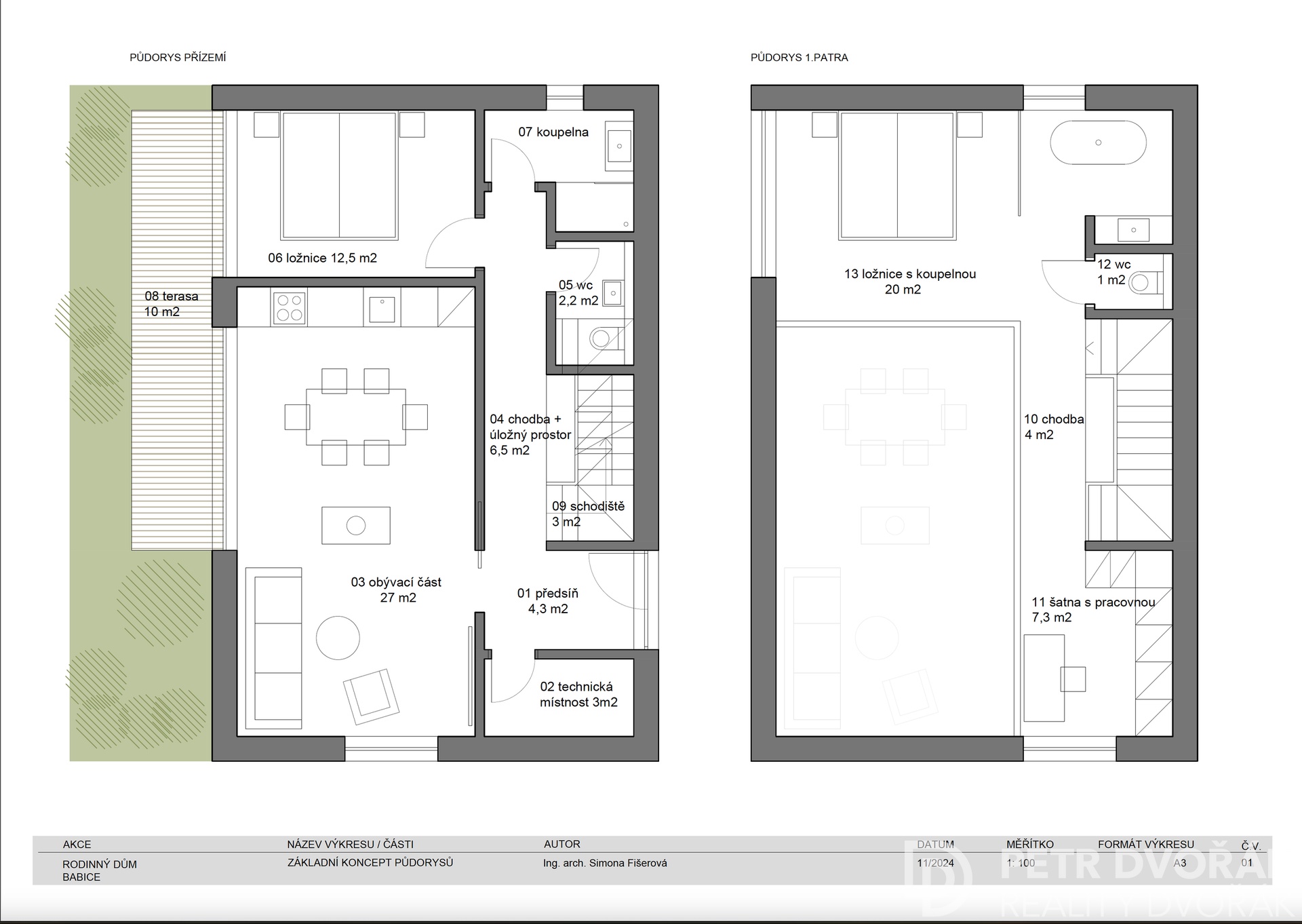
Prodej pozemku pro výstavbu celoročně obytného domu - skvělá alternativa rodinného bydlení v přírodě Nabízíme pozemek o velikosti 470 m2 v atraktivní lokalitě obce Babice u Říčan. Na pozemku se nachází chata o zastavěné ploše 58 m2, která je určena k demolici. Skutečnou hodnotou této nabídky je pozemek s možností výstavby nového celoročně obytného domu o zastavěné ploše až 80 m2 a podlahové ploše až 160 m2 při dvou podlažích. Jedná se o ideální příležitost pro ty, kteří hledají trvalé bydlení v přírodě s výbornou dostupností do Prahy. Jedinečné umístění v sousedství školy Open Gate Pozemek sousedí s otevřeným prostranstvím prestižní školy Open Gate, kde se volně pasou koně, což vytváří klidné a výjimečné prostředí. Lokalita kombinuje blízkost přírody s perfektní dostupností - autem jste v centru Prahy do 30 minut, vlakem z Kolovrat za 20 minut. Do Kolovrat je to 10 minut jízdy autem. Technické parametry a infrastruktura Elektřina: 220 V i 380 V (přívod do spodní části) Voda: Vlastní vrt i kopaná studna Odpad: Septik o kapacitě 1,5 m³ Oplocený pozemek s vrátky přímo k výběhu koní Zděný bazén 5 × 4 m (připravený k obnově) Možnost trvalého pobytu - evidenční číslo Komfortní zázemí a občanská vybavenost Obec Babice nabízí obchod s potravinami, kavárnu, hospodu, tenisové kurty, rugbyové hřiště i celoroční plavecký bazén ve škole Open Gate. Jedná se o lokalitu, která nabízí nejen klid a přírodu, ale i pohodlné zázemí pro každodenní život. Možnosti výstavby dle vašich představ V galerii naleznete inspiraci pro výstavbu moderního domu s otevřeným loftovým konceptem a pochozí střechou, která může sloužit jako terasa. Alternativou je tradiční řešení se sedlovou střechou a dalším pokojem, které může lépe vyhovovat rodinnému bydlení. Prohlídky a kontakt Prohlídky probíhají výhradně v sobotu odpoledne, pouze po předchozí domluvě. Vyhrazeno pro vážné zájemce. Takové příležitosti se objevují zřídka - pozemek s výjimečnou atmosférou a potenciálem pro moderní celoroční bydlení. Nečekejte, až ho objeví někdo jiný - kontaktujte nás ještě dnes.
Rekreační dům se zahradou, vhodný k celoročnímu užívání Mnichovice u Říčan
Virtuální prohlídka: https://my.matterport.com/show/?m=2Gf8ZYwnLzH Nabízíme k prodeji samostatně stojící rekreační dům o dispozici 3+kk a obytné…
Prodej chaty, 60 m2, Brandýs nad Labem-Stará Boleslav
Řadová cihlová chata v klidné části Staré Boleslavi. Chata má 2 nadzemní podlaží, užitnou plochu 60 m2 a nachází se na pozemku o rozloze 218 m2.…