Pronájem bytu 1+kk v Praze, ul. Pleštilova, Praha
Makléř: Průša Filip
Telefon: 296 399 ...
E-mail: info@mmr ...
Zobrazit celý kontaktTelefon: 296 399 006
E-mail: info@mmreality.cz
pronájem
Pleštilova
930276
29.01.2026
neuvedeno
osobní
neuvedeno
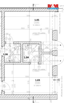
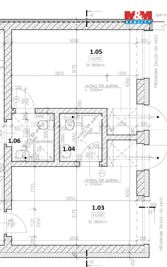
22 m2
G - Mimořádně nehospodárná
Makléř: Průša Filip
Telefon: 296 399 ...
E-mail: info@mmr ...
Zobrazit celý kontaktTelefon: 296 399 006
E-mail: info@mmreality.cz
Nemovitost nabízí
M&M reality holding a.s.
Krakovská 1675/2, 110 00 Praha 1
Zobrazit kontakt na RK800 100 446
Hledáte bytovou jednotku s výhodami rodinného domu? Nabízíme Vám pronájem bytu 1+kk s podlahovou plochou 22 m2. V nové bytové jednotce naleznete vybavenou kuchyňskou linku a krásnou koupelnu. Mezi hlavní výhody patří parkování na oploceném pozemku, sdílenou zahradu či přístup do lesa na hranici pozemku. Autobusová zastávka je vzdálena 4 minuty chůze. Ceny energií budou upřesněny v průběhu nájemního vztahu. Pro více dotazů kontaktujte makléře.
Pronájem, Byt 1+kk, Praha 2
Nabízíme k pronájmu, plně zařízený byt 1+kk o celkové ploše 41m2, v šestém podlaží bytového domu s výtahem se společnou zahradou s bazénem a…
Pronájem, Byt 1+kk, Praha-Zbraslav
pronájem prostorného pokoje 25 m2 na Praze 5 Zbraslav. Pokoj má svoji koupelnu a WC.Je možné mít vlastní nábytek.Výtah, zastávka MHD, supermarket.…