Vybírejte z nabídky 36 315 nemovitostí od 793 realitních kanceláří
lupa mobilní menu
Přehled nemovitostí: pronájem komerční > obchodní prostory > Ostrava Zpět na přehled nabídek

Pronájem, Prostory a objekty pro obchod a služby, Ostrava

foto16_11444004_90830.jpg foto16_11444004_25454.jpg foto16_11444004_55135.jpg foto16_11444004_90003.jpg foto16_11444004_20717.jpg Aktivní
Prodejce

Makléř: Markéta Tomanová

Telefon: 725 808 ...

E-mail: info@bor ...

Zobrazit celý kontakt

pronájem

Ostrava (okres Ostrava-město)

Masná

Komerční, Obchodní prostory

7963

30.01.2026

21 m2

G - Mimořádně nehospodárná

Cena: 6500 CZK / objekt / měsíc
Prodejce

Makléř: Markéta Tomanová

Telefon: 725 808 ...

E-mail: info@bor ...

Zobrazit celý kontakt
Poslat dotaz k nabídce
Zásady používání osobních údajů

Nemovitost nabízí

/loga_velka/9734.jpg

BO! reality a finance s.r.o.

Husova 406, 739 61 Třinec

www.boreality.cz

Zobrazit kontakt na RK

Zobrazit všechny nabídky RK

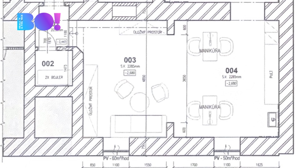
Nabízíme k pronájmu vybavené pracovní místo v příjemném a zavedeném kosmetickém salonu v atraktivní lokalitě hned vedle ulice Stodolní v Ostravě. Prostor je plně zařízen pro nehtařku, vhodný také pro řasovou stylistku nebo vizážistku. Součástí salonu jsou společné prostory, které zahrnují čekárnu pro klienty a WC. Ideální příležitost pro samostatné profesionálky, které hledají reprezentativní a dobře dostupné místo pro svou práci. Cena nájmu činí 6 500 Kč včetně služeb. Provize RK činí 7 865 Kč. Při podpisu nájemní smlouvy je nutné složit kauci ve výši 13 000 Kč. Prostory jsou k dispozici ihned. V případě zájmu nás neváhejte kontaktovat pro více informací nebo domluvení prohlídky.



Nahoru