Pronájem, Byt 2+1, Praha 3
Makléř: Richard Dobiaš
Telefon: 775 252 ...
E-mail: richard. ...
Zobrazit celý kontaktTelefon: 775 252 460
E-mail: richard.dobias@homesweethome.cz
pronájem
Žerotínova
78854
02.02.2026
2 (dům má 5 podlaží)
osobní
70 m2
70 m2
G - Mimořádně nehospodárná
Makléř: Richard Dobiaš
Telefon: 775 252 ...
E-mail: richard. ...
Zobrazit celý kontaktTelefon: 775 252 460
E-mail: richard.dobias@homesweethome.cz
Nemovitost nabízí
Home Sweet Home
Pařížská 1073/1, 110 00 Praha 1
Zobrazit kontakt na RK
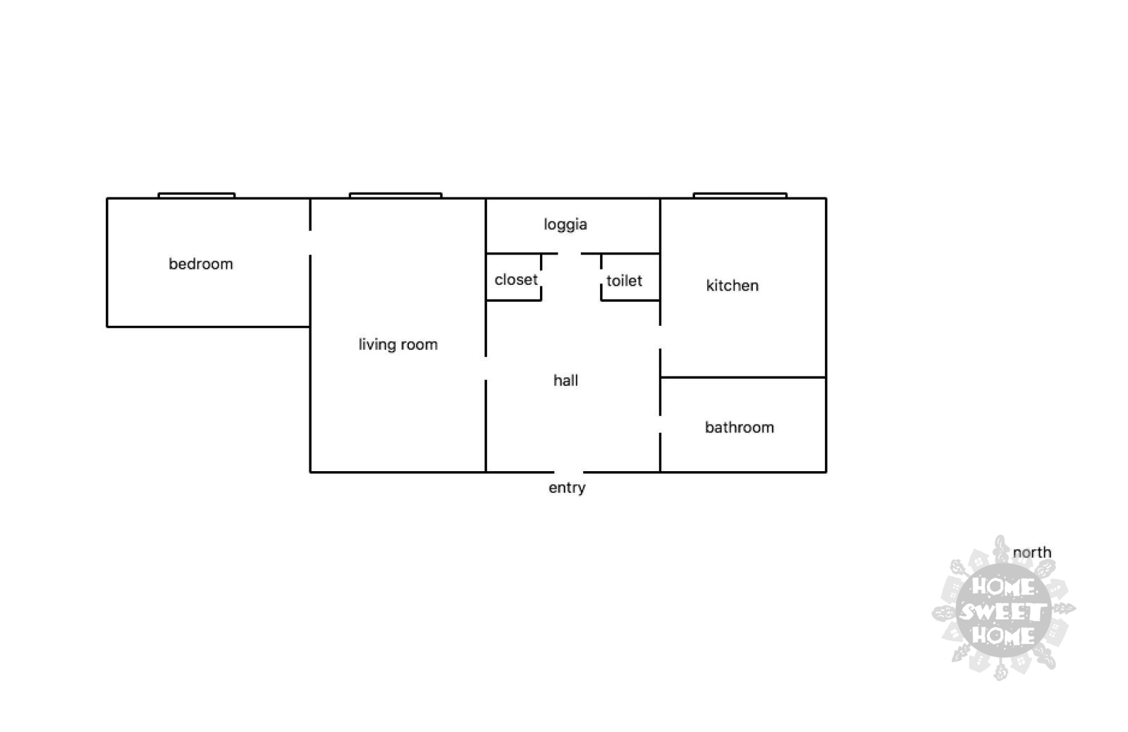
Nabízíme k pronájmu hezký částečně vybavený byt 2+1 s balkonem, který se nachází ve 2.patře cihlového domu s výtahem, v ulici Žerotínova na Žižkově. Dispozice bytu: vstupní chodba vybavená vestavěnou skříní, komodou a botníkem, obývací pokoj se sedačkou, samostatná ložnice se skříní a komodou, kuchyně s jídelním stolem a moderní kuchyňskou linkou (sklokeramická deska, trouba, myčka, pračka, lednice a mikrovlnka), koupelna se sprchovým koutem, toaleta zvlášť. Dostatek úložného prostoru - komora, sklep. Na podlaze PVC, plovoucí podlaha, topení WAW. Klidné bydlení na Praze 3. Kompletní občanská vybavenost a skvělá dopravní dostupnost. Není vhodné na spolubydlení. K dispozici od 1.2.2026
Pronájem hezkého bytu 2+1/S, 55 m2, Praha 6 - Vokovice, ul. K Lánu.
Pronájem hezkého bytu 2+1/S, 55 m2, Praha 6 - Vokovice, ul. K Lánu. Toužíte po klidném bydlení na Praze 6? Oceníte dostatek úložných prostor? Ihned?…
2+1/B, 51,6 m2, 3 p., po rekonstrukci, ul. Čílova, Praha 6 - Veleslavín
Zprostředkujeme Vám pronájem bytové jednotky s balkonem, dispozičně řešené jako 2+1, o užitné ploše 51,6 m2 plus plocha balkonu. Byt se nachází ve…