Vybírejte z nabídky 36 366 nemovitostí od 796 realitních kanceláří
lupa mobilní menu
Přehled nemovitostí: pronájem komerční > hotely a penziony > Přerov nad Labem Zpět na přehled nabídek

Pronájem komerčního objektu 445,6 m | 36 lůžek | Přerov nad Labem

Prodejce

Makléř: Václav Růžička

Telefon: 720 027 ...

E-mail: v.ruzick ...

Zobrazit celý kontakt

pronájem

Přerov nad Labem (okres Nymburk)

Komerční, Hotely a penziony

0898

05.02.2026

neuvedeno

G - Mimořádně nehospodárná

Cena: 80000 CZK / objekt / měsíc
Poznámka k ceně: + energie, provize RK 1
Prodejce

Makléř: Václav Růžička

Telefon: 720 027 ...

E-mail: v.ruzick ...

Zobrazit celý kontakt
Poslat dotaz k nabídce
Zásady používání osobních údajů

Nemovitost nabízí

/images/img-no-foto-small.png

Bleskové reality

Masarykovo náměstí 34/15, Brandýs nad Labem-Stará Bolesl

www.bleskove-reality.cz

Zobrazit kontakt na RK

Zobrazit všechny nabídky RK

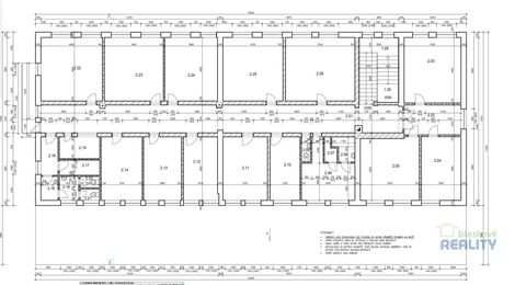
Nabízíme k pronájmu komerční zařízení pro ubytování o celkové ploše 445,6 m s kapacitou až 36 osob. Prostory se nacházejí v 1. patře objektu. Zařízení se pronajímá výhradně jako celek (nikoliv po jednotlivých pokojích). Dispozice: 6× čtyřlůžkový pokoj 6× dvoulůžkový pokoj hlavní kuchyňka + menší kuchyň oddělené dámské a pánské sociální zařízení kancelář (možnost úpravy na další pokoj) sklad (možnost úpravy na další pokoj) Vybavení: postele/palandy, skříně, lednice umyvadlo ve většině pokojů pračka v přízemí internet v objektu samostatné měření elektřiny Část pokojů je po rekonstrukci, část v původním stavu. Úpravy možné po dohodě s nájemcem. Lokalita: Objekt se nachází u fotbalového hřiště v Přerově nad Labem. parkování až pro 8 vozidel autobusová zastávka cca 13 minut pěšky potraviny cca 16 minut pěšky v přízemí objektu je bufet/hospůdka (samostatný provoz, není součástí pronájmu) Vhodné zejména pro agenturní nebo firemní ubytování zaměstnanců či dlouhodobé provozování ubytování. Nájemné: 80 000 Kč/měsíc + energie K dispozici dle dohody. Pro více informací nebo domluvení prohlídky nás kontaktujte.




Pronájem penzionu Přerov nad Labem na Eurobydleni.cz


Nahoru