Vybírejte z nabídky 38 933 nemovitostí od 774 realitních kanceláří
lupa mobilní menu
Přehled nemovitostí: pronájem komerční > obchodní prostory > Česká Třebová Zpět na přehled nabídek

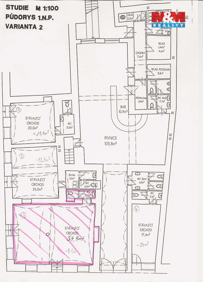
Pronájem obchod a služby, 58 m2, Česká Třebová, ul. Hýblova

932/foto12_11447147_9863o.jpg 932/foto12_11447147_17x8gk.jpg 932/foto12_11447147_iee2c.jpg 932/foto12_11447147_1dqeh4.jpg 932/foto12_11447147_qkags.jpg Aktivní
Prodejce

Makléř: Kunc Radim

Telefon: 800 100 ...

E-mail: info@mmr ...

Zobrazit celý kontakt

pronájem

Česká Třebová (okres Ústí nad Orlicí)

Hýblova

Komerční, Obchodní prostory

932105

osobní

58 m2

G - Mimořádně nehospodárná

Cena: 11000 CZK / objekt / měsíc
Prodejce

Makléř: Kunc Radim

Telefon: 800 100 ...

E-mail: info@mmr ...

Zobrazit celý kontakt
Poslat dotaz k nabídce
Zásady používání osobních údajů

Nemovitost nabízí

/loga_velka/7301.jpg

M&M reality holding a.s.

Krakovská 1675/2, 110 00 Praha 1

www.mmreality.cz

Zobrazit kontakt na RK

Zobrazit všechny nabídky RK

Nabízíme k pronájmu atraktivní obchodní prostor v centru České Třebové, ideální pro vaše podnikání! Tento rohový prostor se nachází v přízemí cihlové budovy a nabízí užitnou plochu 58 m2. Díky vchodu ze dvou stran zajišťuje výbornou dostupnost a viditelnost pro vaše zákazníky. Umístění u Starého náměstí v centru města přináší vysokou frekvenci potenciálních klientů. Stav nemovitosti je dobrý. Volné od 1.4.2026. Využijte jedinečnou příležitost pro rozvoj vašeho podnikání na prestižní adrese! Pro více informací nás neváhejte kontaktovat.



Nahoru