Prodej, Výrobní prostory, Slaný
Makléř: Lukáš Helešic
Telefon: 774 956 ...
E-mail: lukas.he ...
Zobrazit celý kontaktTelefon: 774 956 705
E-mail: lukas.helesic@qara.cz
prodej
Pražská
18662
665 m2
G - Mimořádně nehospodárná
Makléř: Lukáš Helešic
Telefon: 774 956 ...
E-mail: lukas.he ...
Zobrazit celý kontaktTelefon: 774 956 705
E-mail: lukas.helesic@qara.cz
Nemovitost nabízí
QARA s.r.o.
Šafaříkova 201/17, 120 00 Praha 2
Zobrazit kontakt na RK
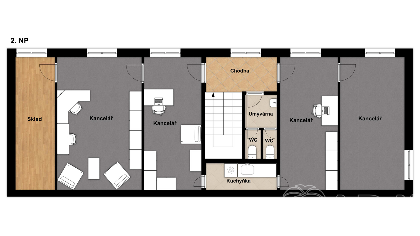
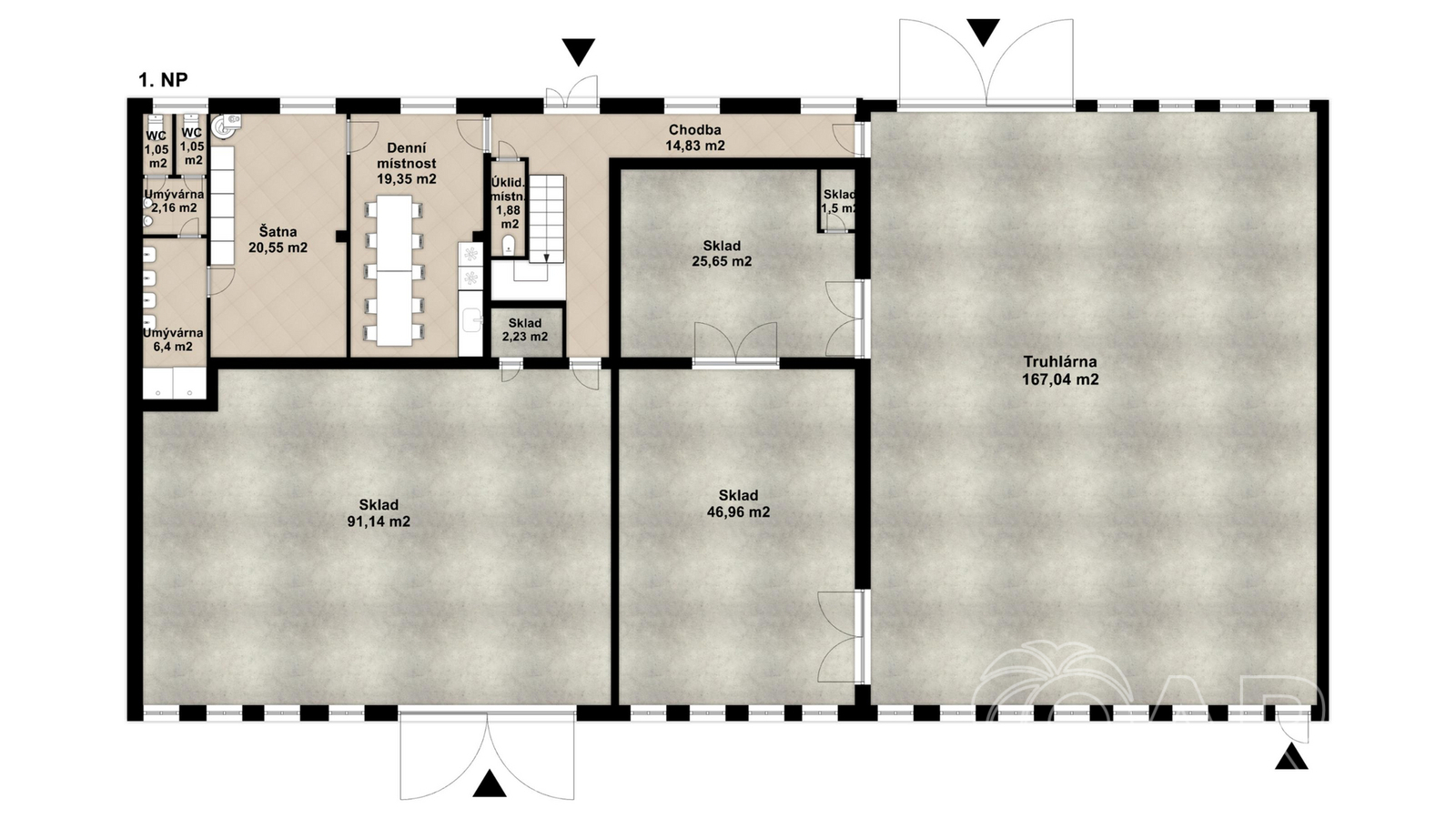
Nabízíme k prodeji výrobní halu s kompletním zázemím, aktuálně využívanou jako truhlárna, umístěnou v zabezpečeném areálu s pozemkem 1589 m2 a užitnou plochou 665 m2. Objekt je ve funkčním technickém stavu, vhodný k okamžitému využití a nabízí široké možnosti dalšího podnikání. Dispozice a technické řešení: 1. nadzemní podlaží - 568 m2 výrobní prostory technické zázemí šatny pro zaměstnance jídelna skladové a obslužné prostory sociální zázemí (WC, sprchy) 2. nadzemní podlaží - 95,5 m2 kancelářské prostory - celkem 4 kanceláře + prostor pro kartotéku kuchyňka WC Hala má železobetonový stropní systém s hurdiskovými vložkami (žebrovaný strop), který zajišťuje dobrou únosnost i dlouhou životnost konstrukce. Objekt je dostatečně světlý, s kvalitním umělým osvětlením a přirozeným denním světlem. Technický stav a vybavení: nová střecha (2023) bezpečnostní systém napojení na veškeré inženýrské sítě nízké měsíční provozní náklady cca 15 000 Kč (elektřina, plyn, vodné/stočné) Venkovní plochy: parkování v přední části objektu zpevněná plocha za halou o výměře 965 m2, aktuálně pronajatá (výpovědní doba 3 měsíce) - vhodná pro manipulaci, skladování nebo budoucí rozšíření provozu Díky své dispozici, technickému stavu a umístění je objekt vhodný pro: lehkou výrobu dílnu nebo servisní provoz skladování a logistiku montážní nebo kompletovací činnost provoz e-shopu s vlastním zázemím kombinaci výroby, administrativy a skladů zázemí pro řemeslnou nebo technickou firmu Nemovitost představuje zajímavou příležitost jak pro vlastní podnikání, tak i pro investory hledající stabilní komerční objekt s nízkými provozními náklady.
Prodej, Výrobní prostory, Velvary
komerčního areálu v ulici Chržínská v obci Velvary. Areál zahrnuje 5 budov různého stáří a různého stavu. Většínou se jendá o budovy cihlové, které…
Prodej výrobního objektu, 2602 m2, Kladno, ul. Buštěhradská
Nabízíme k prodeji prostornou komerční budovu v katastrálním území Dubí u Kladna, ideální pro firmy zaměřené na výrobu, skladování, kancelářské…