Prodej bytu 4+kk (119 m2) s terasou, Praha 4, ul. Tigridova
Makléř: Pavel Smíšek
Telefon: 603 515 ...
E-mail: pavel.sm ...
Zobrazit celý kontaktTelefon: 603 515 005
E-mail: pavel.smisek@razka.cz
prodej
Tigridova
PS062016
06.05.2026
1 (dům má 4 podlaží)
osobní
neuvedeno
neuvedeno
B - Velmi úsporná
Makléř: Pavel Smíšek
Telefon: 603 515 ...
E-mail: pavel.sm ...
Zobrazit celý kontaktTelefon: 603 515 005
E-mail: pavel.smisek@razka.cz
Nemovitost nabízí
Realitní samoobsluha s.r.o.
Osadní 1053/28, 170 00 Holešovice, Praha7
Zobrazit kontakt na RKmanager@realitni-samoobsluha.cz
374 725 355
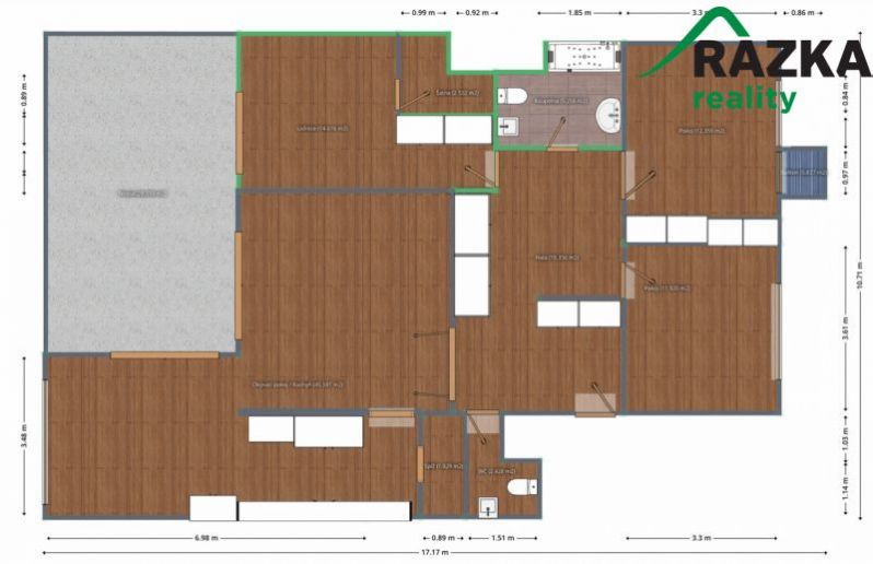
V exkluzivním zastoupení Vám nabízíme k prodeji nadstandardní byt 4+kk, o ploše 119 m2 s prostornou terasou o velikosti 21 m2, který se nachází ve 2. nadzemním podlaží moderní rezidenční budovy v klidné a vyhledávané lokalitě ulice Tigridova, Praha 4 Michle. Součástí nabídky je sklepní kóje (2,30 m2) a dvě parkovací stání v 1. podzemním podlaží domu. Dispozice bytu zahrnuje tři samostatné pokoje, obývací prostor s kuchyňským koutem (moderní kuchyňská linka s vestavěnými spotřebiči), halu, šatnu, koupelnu s vanou, toaletou s bidetem, další samostatnou toaletu a také komoru. Dominantou bytu je terasa, která rozšiřuje obytný prostor o další plnohodnotnou zónu pro volný čas a nabízí tak možnost relaxace, venkovního posezení, grilování nebo pěstování zeleně. Byt je aktuálně nevybavený a připravený k dokončení interiéru dle individuálních představ nového majitele, který si tak může vytvořit bydlení přesně na míru dle svého vkusu. Komfort bydlení doplňují vestavěné skříně, které nabízejí dostatek úložného prostoru. Michle patří mezi rezidenční lokality s výbornou dostupností do centra i administrativních částí Prahy 4 (Brumlovka). V okolí je kompletní občanská vybavenost (školy, školky, obchody, restaurace, kavárny i zdravotnická zařízení), zastávky MHD (autobus i tramvaj) i zeleň pro každodenní odpočinek včetně cyklostezek a sportovišť (Tyršův vrch). Tato nemovitost nabízí ideální zázemí jak pro rodinné bydlení, tak i pro klienty hledající reprezentativní městský byt s investičním potenciálem. Bytová jednotka je v osobním vlastnictví s možností financování hypotečním úvěrem, s jehož vyřízením Vám rádi zdarma pomůžeme. Pro více informací o této nemovitosti nebo domluvení termínu prohlídky mne neváhejte kontaktovat.
Nový pasivní byt 4+kk 104,4 s lodžií, Praha 5
Terra Barrandov Praha 5, ulice Silurská 4+kk 104,4 m2 s lodžií 12,60 m2 v 2. nadzemním podlaží Orientace bytu: ZSV Nabízíme moderní a světlý byt 4…
Rodinné bydlení s atmosférou domu: Mezonet 4+kk (96 m) se zahradou a velkorysou garáží
Hledáte kompromis mezi bytem a rodinným domem? Nabízíme k prodeji prostorný mezonetový byt 4+kk v osobním vlastnictví, který se svou dispozicí a…
Prodej bytu 4+kk Praha 1 na Eurobydleni.cz