Pronájem, Administrativní prostory a objekty, Mladá Boleslav
Makléř: Libor Kašička
Telefon: 731 407 ...
E-mail: kasicka@ ...
Zobrazit celý kontaktTelefon: 731 407 947
E-mail: kasicka@realitykl.cz
pronájem
Mladá Boleslav (okres Mladá Boleslav)
Novákova
Komerční, Kanceláře a administrativní prostory
2377
15.04.2026
46 m2
C - Úsporná
Makléř: Libor Kašička
Telefon: 731 407 ...
E-mail: kasicka@ ...
Zobrazit celý kontaktTelefon: 731 407 947
E-mail: kasicka@realitykl.cz
Nemovitost nabízí
REALITY K+L
Blahoslavova 189, 41301 Mladá Boleslav
Zobrazit kontakt na RK737 916 392
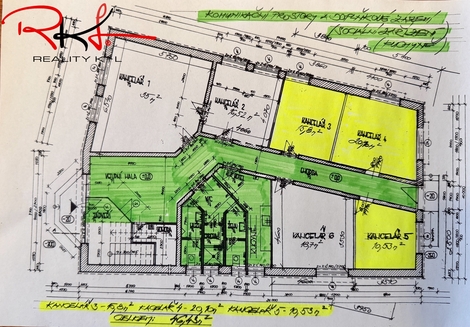
Nabízíme k pronájmu kancelářské / obchodní prostory, Mladá Boleslav Dovolujeme si Vám nabídnout k pronájmu kancelářské nebo obchodní prostory v centru města Mladá Boleslav. Jedná se o soubor tří neprůchozích místností o celkové výměře 46,5 m2, které jsou vyznačeny na půdorysu. Dispozice • tři samostatné neprůchozí místnosti • možnost variabilního využití (kanceláře, služby, menší provoz) Technické informace • ústřední plynové vytápění • zateplená budova s plastovými okny • bezpečnostní systém • sdílené sociální zázemí na patře (kuchyňka, toalety, sprcha) Další možnosti • možnost stavebních úprav dle dohody a délky nájmu • možnost oddělení prostoru a vytvoření samostatného vstupu ze zadní části budovy Parkování • parkoviště přímo před budovou Občanská vybavenost Výborná poloha v rámci Mladá Boleslav - centrum města v docházkové vzdálenosti, kompletní občanská vybavenost v okolí. Podmínky pronájmu • nájemné 16 000 Kč / měsíc • zálohy na energie a služby cca 2 800 Kč / měsíc • vratná kauce 20 000 Kč • služby RK 20 000 Kč • k dispozici od dubna 2026 Pro více informací mě prosím kontaktujte telefonicky v pracovních dnech 8:00-18:00, případně kdykoliv prostřednictvím SMS nebo e-mailu. Speaking English. Reality K+L - profesionální realitní služby od roku 2005.
Pronájem reprezentativních komerčních prostor v centru Mladé Boleslavi
Nabízíme k dlouhodobému pronájmu reprezentativní komerční prostory o výměře 317 m2 na atraktivní adrese v ulici Pivovarská, přímo v centru Mladé…
Pronájem kancelářského prostoru, 110 m2, Mladá Boleslav
Hledáte prostory pro své podnikání v lukrativním místě v Mladé Boleslavi? Máme pro Vás exkluzivně k pronájmu komerční prostory v budově postavené v…