Historická usedlost s komerčním potenciálem, Petrovice u Karviné
Makléř: BSc. Kristýna Khan
Telefon: 704 884 ...
E-mail: kristyna ...
Zobrazit celý kontaktTelefon: 704 884 774
E-mail: kristyna.khan@ochodekestates.cz
prodej
Petrovice u Karviné (okres Karviná)
261219
21.04.2026
2
osobní
12 976 m2
993 m2
G - Mimořádně nehospodárná
Makléř: BSc. Kristýna Khan
Telefon: 704 884 ...
E-mail: kristyna ...
Zobrazit celý kontaktTelefon: 704 884 774
E-mail: kristyna.khan@ochodekestates.cz
Nemovitost nabízí
Ochodek Estates s.r.o.
Brodek u Konice 126, 79846 Brodek u Konice
Zobrazit kontakt na RK
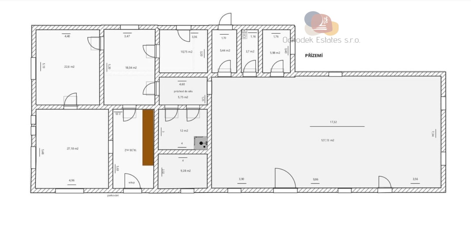
Představte si: Ranní káva na nádvoří, které vypadá jako vystřižené z italského filmu. Šumění potoka místo ranních zpráv. A místo nudného souseda elektrické vedení, které vám aspoň připomíná, že jste stále v civilizaci. Co vlastně prodáváme? Starý mlýn, který má za sebou víc než vy i já dohromady, ale na rozdíl od nás má pořád budoucnost. Technická data pro racionální polovinu vašeho mozku: 993 m2 vnitřního prostoru (ano, skutečně) 12.976 m2 pozemku (z toho 2.631 m2 lesa pro budoucí houbaře) Nová střecha a okna (tzn. už vás to nezruinuje hned první zimu) Poetické vyznání pro tu druhou polovinu: Tohle místo čeká na někoho, kdo mu vrátí smysl. Možná to budete vy s pivnicí a svatebním sálem. Možná s restaurací, kde budou lidé jezdit "na výlet". Nebo vytvoříte domov pro seniory, kde si budou pamatovat víc šťastných chvil než za posledních dvacet let dohromady. Co tady máte vyřešeno: _ Střecha drží (není to detail, věřte mi) _ Okna jsou nová (rovných 43 kousků) _ Projekt na hotel s restaurací připraven (někdo před vámi myslel, vy jen uděláte) _ Možnost změny na sociální služby (papírově vyřízeno) _ Vlastní potok jako hranice pozemku (sousedské spory? Minimálně) _ Voda z řádu i vlastní studny (možná by šel obnovit i náhon?) _ Nová jímka maximální kapacity _ Přípojka na plyn u domu Buďme upřímní: Tohle není nemovitost pro lidi, kteří chtějí klíče a nastěhovat se zítra. Tohle je pro ty, kdo vidí mlýnské kolo tam, kde ostatní vidí rezavé železo. Pro ty, kdo slyší smích svatebčanů v prázdných sálech. Pro ty, kdo dokážou z minulosti vytvořit budoucnost. Máte vizi? Máme mlýn. Zavolejte. Nebo napište. Nebo přijeďte - na místě to dává mnohem větší smysl. P.S.: Ano, je to práce. Ne, nebude to levné dokončit. Ale až budete za dvacet let sedět na terase s vínem a dívat se na svůj hotový projekt, budete vědět, že to stálo za to. Pozn: Uvedená kupní cena je včetně zprostředkovatelského poplatku. Energetický štítek zpracováváme. Financování pomůžeme zajistit.
Prodej rodinného domu, 180 m2, Dolní Marklovice
Většina z nás hledá levné ekonomické bydlení, a tak vám představuji velkoryse velkou novostavbu rodinného domu s minimálními náklady na život.…
Exkluzivní Prodej rodinného domu 3+kk, 53 m2, pozemek 425 m2, Karviná
Nabízíme Vám modulový rodinný dům. Jedná se o velmi úsporný 3+kk se zastavěnou plochou 53 m2 na pozemku o výměře 425 m2 ve městě Karviná - Nové…