Vybírejte z nabídky 36 390 nemovitostí od 798 realitních kanceláří
lupa mobilní menu
Přehled nemovitostí: pronájem komerční > obchodní prostory > Klínec Zpět na přehled nabídek

Pronájem, Prostory a objekty pro obchod a služby, Klínec

Prodejce

Makléř: BEM. Ivana Gašpar (Žďánská)

Telefon: 725 646 ...

E-mail: ivana.ga ...

Zobrazit celý kontakt

pronájem

Klínec (okres Praha-západ)

Komerční, Obchodní prostory

12011

09.02.2026

94 m2

B - Velmi úsporná

Cena: 32900 CZK / objekt / měsíc
Poznámka k ceně: + zálohy za služby a energie, + vratná kauce, + rezervační poplatek 1
Prodejce

Makléř: BEM. Ivana Gašpar (Žďánská)

Telefon: 725 646 ...

E-mail: ivana.ga ...

Zobrazit celý kontakt
Poslat dotaz k nabídce
Zásady používání osobních údajů

Nemovitost nabízí

/loga_velka/10111.webp

GEPARD REALITY

Sokolovská 192/79, Praha

www.gpre.cz

Zobrazit kontakt na RK

Zobrazit všechny nabídky RK

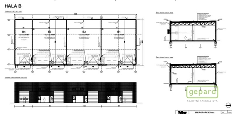
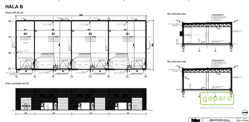
Hledáte moderní zázemí pro své podnikání, které je na dosah Prahy, ale zároveň v klidném a přehledném prostředí? V obci Klínec, pouhých 20 minut jízdy od Prahy, nabízíme k pronájmu nově dokončený komerční prostor v moderním multifunkčním areálu Mikropark. Prostor je ideální pro skladování, lehkou výrobu, servis, e-shop nebo jinou nerušící podnikatelskou činnost. Díky vysoké světlosti, průmyslovým vratům a kvalitní betonové podlaze nabízí velkou variabilitu využití. Součástí je příprava pro kancelář v patře, kompletní technické zázemí a parkování přímo u jednotky. Velkou výhodou je rychlé napojení na D4, snadná dostupnost pro zaměstnance i klienty a zastávka PID v bezprostřední blízkosti areálu. Informace k pronájmu : • Nájemné: 32.900 Kč / měsíc + DPH • Zálohy na služby a energie dle způsobu využití prostoru • Vratná kauce: 2× měsíční nájem • Rezervační poplatek: 1× měsíční nájem Máte zájem o více informací nebo osobní prohlídku? Neváhejte kontaktovat realitní makléřku.



Nahoru