Výrobně-skladovací halový objekt o vnitřní ploše 1.168 m2, Ústí nad Labem
Makléř: Ing. Pavel Budina
Telefon: 774 133 ...
E-mail: info@gen ...
Zobrazit celý kontaktTelefon: 774 133 244, 777 133 244
E-mail: info@genera.cz
pronájem
Ústí nad Labem (okres Ústí nad Labem)
U Tonasa
N01750
osobní
neuvedeno
G - Mimořádně nehospodárná
Makléř: Ing. Pavel Budina
Telefon: 774 133 ...
E-mail: info@gen ...
Zobrazit celý kontaktTelefon: 774 133 244, 777 133 244
E-mail: info@genera.cz
Nemovitost nabízí
GENERA s. r. o.
Husova 1354/49, Liberec
Zobrazit kontakt na RK485 109 133
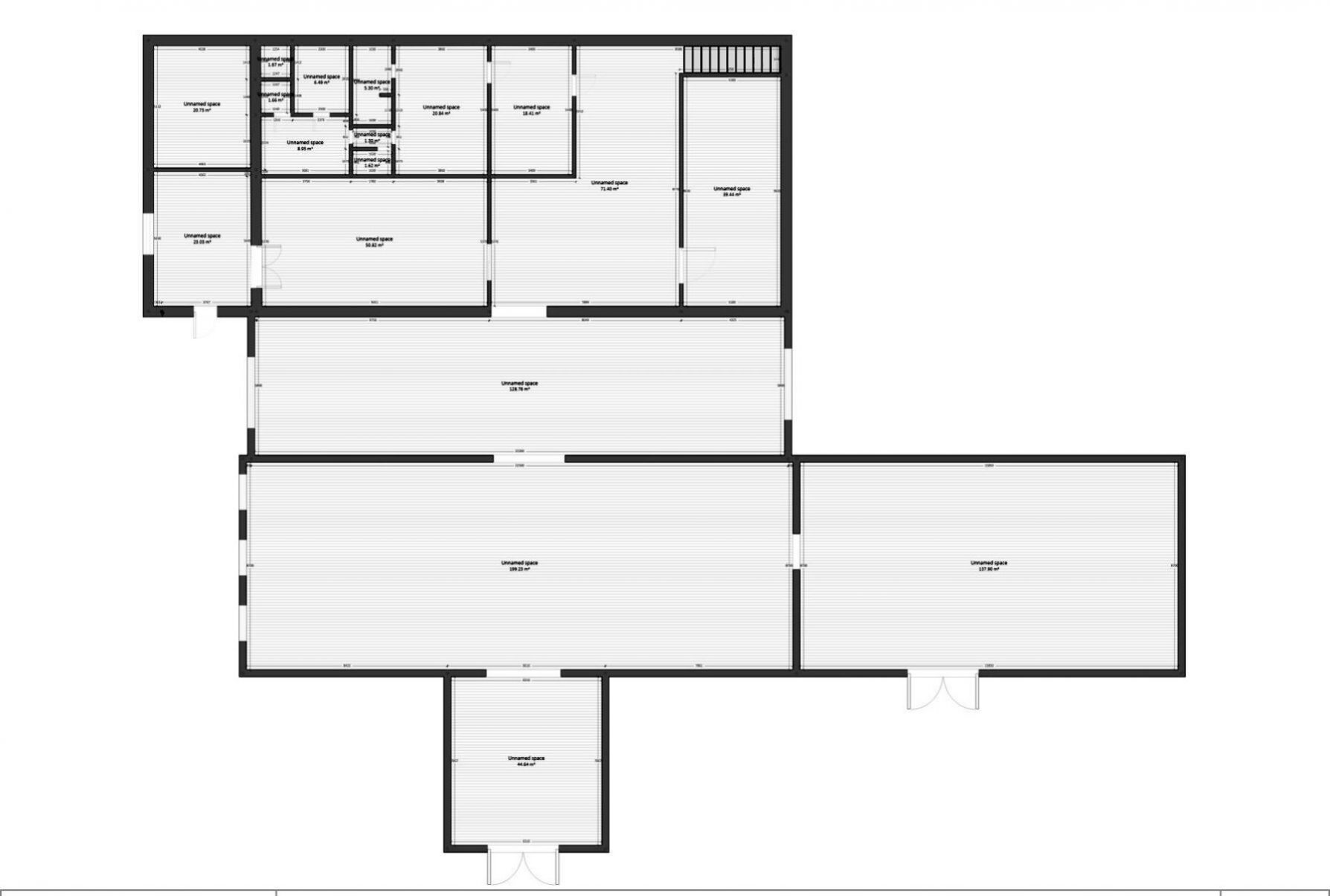
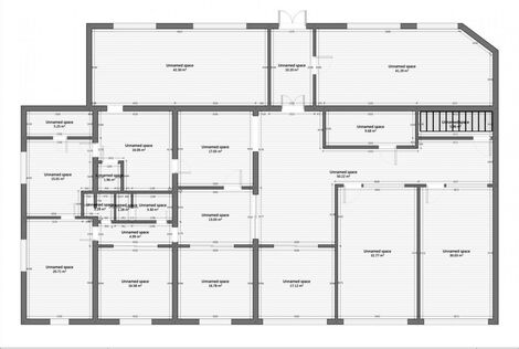
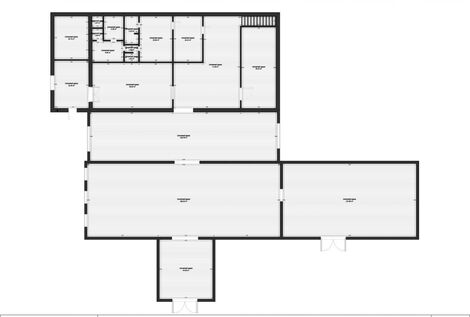
Pronajmeme výrobně-skladovací halový objekt o celkové vnitřní ploše 1.168 m2, který se nachází v oploceném a střeženém průmyslovém areálu. Výrobní hala je vybavena 2 mostovými jeřáby o nosnosti 3.200 kg a 2 sloupovými otočnými jeřáby o nosnosti 250 kg. V objektu jsou k dispozici kanceláře se sociálním zázemím. Zavedena je elektřina, voda, kanalizace a plyn. Možnost připojení k internetu optickou sítí. Před objektem je venkovní zpevněná plocha o výměře cca 600 m2. Areál se nachází v územním plánu v plochách VL plochy výroby a skladování, lehký průmysl. Poznámka: Možnost rozšíření pronájmu i o další prostory a venkovní plochy nacházející se v okolí haly.
Pronájem skladových prostor, Ústí nad Labem
Nabízíme k dlouhodobému pronájmu suchý a udržovaný sklad o ploše 440 m, a to na dobu 5 let s možností následného prodloužení. Objekt má šířku 15 m a…
Prodej: Skladovací a výrobní prostory Krásné Březno, Ústí nad Labem, D8
BEZ PROVIZE Nabízíme k pronájmu moderní skladovací či výrobní prostory v Krásném Březnu v Ústí nad Labem. Prostory nabízí snadný přístup na dálniční…