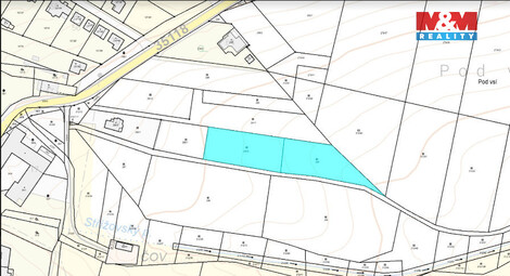
Prodej louky v Klučově, ul. Klučov
Makléř: Jelínek Tomáš
Telefon: 296 399 ...
E-mail: info@mmr ...
Zobrazit celý kontaktTelefon: 296 399 006
E-mail: info@mmreality.cz
prodej
Klučov
931382
osobní
3 935 m2
Makléř: Jelínek Tomáš
Telefon: 296 399 ...
E-mail: info@mmr ...
Zobrazit celý kontaktTelefon: 296 399 006
E-mail: info@mmreality.cz
Nemovitost nabízí
M&M reality holding a.s.
Krakovská 1675/2, 110 00 Praha 1
Zobrazit kontakt na RK800 100 446
Nabízíme k prodeji 2 pozemky o celkové rozloze 3935 m2 v katastrálním území Klučov, ideálně situovaný na okraji obce. Tento rozlehlý pozemek představuje jedinečnou příležitost pro zemědělské využití, nebo investici. Nachází se v klidné lokalitě s dobrou dostupností občanské vybavenosti a dopravního spojení. Pro více informací či domluvu prohlídky nás neváhejte kontaktovat.
Louka, prodej, Ptáčov, Třebíč
Nabízíme k prodeji rozsáhlý pozemek o celkové výměře 14 245 m v katastrálním území Ptáčov, okres Třebíč. Tyto ucelené pozemky se nachází v krásné…
Louka, prodej, Opatov, Třebíč
Nabízím k prodeji dva pozemky ve výlučném vlastnictví v katastrálním území Opatov na Moravě, okres Třebíč. HLAVNÍ PŘEDNOSTI NABÍDKY -> bonita vyšší…