Pronájem, Byt 3+kk, Soběšovice
Makléř: Lukáš Gebauer
Telefon: 725 808 ...
E-mail: info@bor ...
Zobrazit celý kontaktTelefon: 725 808 080
E-mail: info@boreality.cz
pronájem
Soběšovice (okres Frýdek-Místek)
8025
2 (dům má 2 podlaží)
osobní
neuvedeno
103 m2
D - Méně úsporná
Makléř: Lukáš Gebauer
Telefon: 725 808 ...
E-mail: info@bor ...
Zobrazit celý kontaktTelefon: 725 808 080
E-mail: info@boreality.cz
Nemovitost nabízí
BO! reality a finance s.r.o.
Husova 406, 739 61 Třinec
Zobrazit kontakt na RK725 808 080
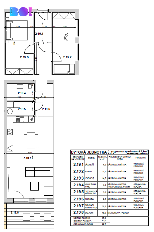
Hledáte místo, kde budete mít přírodu, vodu a slunce doslova na dosah? BO! Reality vám s velkou radostí představuje k pronájmu zcela nový byt o dispozici 3+kk, nacházející se v srdci Horních Soběšovic, jen pár kroků od přehrady. Ideální pro ty, kteří milují klid, procházky u vody, ranní slunce na terase a večerní západy s vůní lesa. Místo, kde si odpočinete, nadechnete se a budete opravdu doma. Dispozice a vybavení: Kompletně nový a plně vybavený byt 3+kk 87,8 m2 a terasa 15,2 m2. Kuchyně na míru včetně moderních spotřebičů: lednice s mrazákem, mikrovlnná trouba, elektrická trouba, varná deska, myčka nádobí a digestoř. V kuchyni stůl a židle, v obývacím pokoji pohodlný gauč a konferenční stolek. Ložnice s postelí a nočními stolky - připravená k nastěhování. Koupelna s pračkou, sušičkou a žebříkovým radiátorem. Podlahové topení pro maximální komfort po celý rok. Klimatizace pro horké letní dny. Alarm a trezor pro vaše bezpečí a klid. Parkovací místo přímo před domem. Lokalita a okolí: Příroda a voda na dosah: procházky kolem přehrady, běhání, cyklostezky, paddleboard, koupání, rybaření. Slunné dny u vody a večery s výhledem - dokonalé místo pro relax i aktivní život. Občanská vybavenost v blízkém okolí: obchody, kavárny a restaurace, dětská hřiště, základní občanské služby. Dobrá dostupnost do okolních měst, klidná a bezpečná lokalita. Podmínky nájmu: Nájem: 35.000 Kč měsíčně. Záloha na služby: 6.000 Kč (voda, elektřina). Vratná jistota (kauce) ve výši dvou až tří měsíčních nájmů a administrativní poplatek realitní kanceláři ve výši jednoho měsíčního nájemného + DPH. Možnost trvalého pobytu a vhodné k dlouhodobému bydlení. Tento byt je ideální volbou pro jednotlivce, páry i ty, kdo hledají druhý domov u vody. Pokud chcete žít v harmonii s přírodou a mít přitom veškerý komfort moderního bydlení, ozvěte se - rádi vás provedeme. Srdce vás sem přivede, klid a slunce si vás tu udrží. BO! spolu tvoříme příběhy...
Pronájem, Byt 3+kk, Třinec
Nabízíme Vám k pronájmu nadstandardně prostorný byt o dispozici 3+kk s prostorem pro šatnu a celkovou výměrou 99,40 m2, situovaný ve vyhledávané…
Pronájem podkrovního bytu 3+kk s šatnou, Náměstí, Paskov
Hledáte prostorný byt s možností dlouhodobého pronájmu? Mám pro Vás nabídku podkrovního bytu 3+kk se šatnou, 130 m2 na Náměstí v Paskově. Jedná se o…