Prodej bytu 2+1, 50 m2, Zastávka, ul. Havířská
Makléř: Kopčani Vladimír
Telefon: 296 399 ...
E-mail: info@mmr ...
Zobrazit celý kontaktTelefon: 296 399 006
E-mail: info@mmreality.cz
prodej
Havířská
930317
20.02.2026
neuvedeno
osobní
neuvedeno
50 m2
G - Mimořádně nehospodárná
Makléř: Kopčani Vladimír
Telefon: 296 399 ...
E-mail: info@mmr ...
Zobrazit celý kontaktTelefon: 296 399 006
E-mail: info@mmreality.cz
Nemovitost nabízí
M&M reality holding a.s.
Krakovská 1675/2, 110 00 Praha 1
Zobrazit kontakt na RK800 100 446
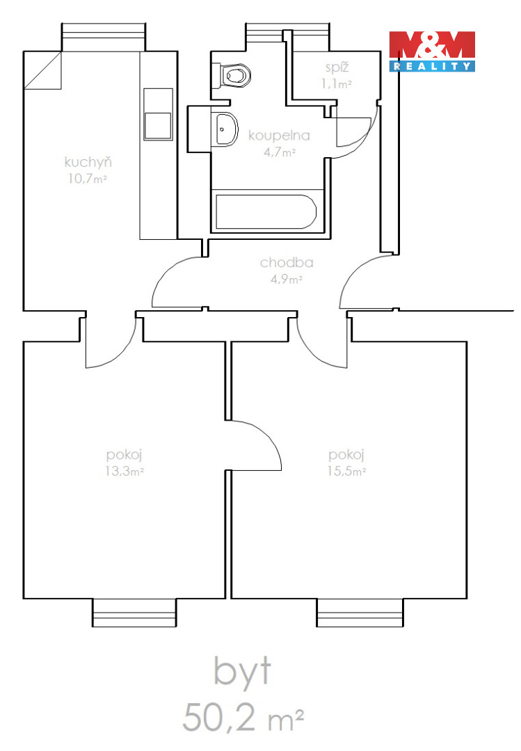
Nabízíme k prodeji útulný byt 2+1 o užitné ploše 50 m2 v klidné části obce Zastávka. Tento cihlový byt se nachází v prvním nadzemním podlaží třípatrového domu. Byt je v původním stavu, ihned obyvatelný,spíše určený k rekonstrukci dle představ budoucího majitele. Dispozice: kuchyně 10,7 m2, obývací pokoj 15,5 m2, ložnice 13,3 m2, chodba 4,9 m2, koupelna s wc 4,7 m2 spíž 1,1 m2. K bytu náleží dva sklepy umístěné v suterénu domu o celkové výměře 7m2.Topení plynové Waw, ohřev vody elektrickým bojlerem umístěným v koupelně. Štítová stěna domu je zateplena, Lokalita nabízí klidné bydlení s výbornou dostupností do centra obce a občanskou vybaveností v dosahu. Ideální volba pro páry či jednotlivce hledající pohodlné bydlení v příjemném prostředí. Neváhejte nás kontaktovat pro více informací či prohlídku.
Převod dr. podílu, byty/2+1, 61 m2, Sportovní 529, 66411 Zbýšov, Brno-venkov [ID 81570]
Prodej bytu 2+1 v klidné části Zbýšova u Brna 61 m, balkon, sklep, parkování Nabízíme k prodeji útulný byt 2+1 o výměře 61 m s neprůchozími pokoji…
Prodej OV 2+1 s parkovacím stáním u domu, ul. Vodní, Hrušovany u Brna
Prodej bytu v osobním vlastnictví, o dispozici 2+1, s parkovacím místem u domu, v klidném místě obce Hrušovany u Brna, na ul. Vodní. Obec Hrušovany…