Prodej bytu 3+1, 102 m2, Čáslav, ul. Na Kozinci
Makléř: Smešná Andrea
Telefon: 800 100 ...
E-mail: info@mmr ...
Zobrazit celý kontaktTelefon: 800 100 446
E-mail: info@mmreality.cz
prodej
Na Kozinci
933001
1 (dům má 1 podlaží)
osobní
neuvedeno
102 m2
G - Mimořádně nehospodárná
Makléř: Smešná Andrea
Telefon: 800 100 ...
E-mail: info@mmr ...
Zobrazit celý kontaktTelefon: 800 100 446
E-mail: info@mmreality.cz
Nemovitost nabízí
M&M reality holding a.s.
Krakovská 1675/2, 110 00 Praha 1
Zobrazit kontakt na RK800 100 446
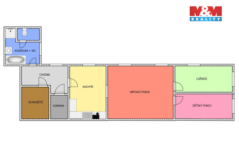
Prodej atypického bytu o dispozici 3+1 a užitné ploše 102 m2. Nachází se ve druhém nadzemním podlaží zděného domu, ve kterém jsou pouze tři bytové jednotky. Disponuje vstupním schodištěm, chodbou, kuchyní s originální kuchyňskou linkou, prostorným obývacím pokojem, dvěma ložnicemi a koupelnou s vanou, umyvadlem, sprchovým koutem a samostatným WC. Topení a ohřev vody zabezpečuje vlastní plynový kotel. K bytu patří sklep a k užívání je společný dvůr. Díky poloze v historickém centru města je vše potřebné "po ruce". Ve městě je výborná občanská vybavenost a široké možnosti kulturního i sportovního vyžití. Pro více informací a sjednání prohlídky nám neváhejte zavolat. Pomůžeme Vám i s financováním.
Prodej bytu 3+1, 72 m2, Zruč nad Sázavou, ul. Okružní
Prodej bytu 3+1 v 2. patře zděného domu o užitné ploše 72 m2 v klidné části obce Zruč nad Sázavou, ulice Okružní. Byt má neprůchozí samostatné pokoje…
Prodej bytu 3+1 73 m 17. listopadu, Kutná Hora - Šipší
Prodej bytu 3+1 73 m 17. listopadu, Kutná Hora - Šipší Prodej bytu 3+1 po kompletní rekonstrukci 73 m, 2 balkony, poslední patro Nabízím k prodeji…