Vybírejte z nabídky 36 392 nemovitostí od 798 realitních kanceláří
lupa mobilní menu
Přehled nemovitostí: prodej domy > rodinné domy > Netřebice Zpět na přehled nabídek

Prodej, Rodinný dům, Netřebice

Prodejce

Makléř: Realitní poradce 501

Telefon: 778 077 ...

E-mail: realitni ...

Zobrazit celý kontakt

prodej

Netřebice (okres Český Krumlov)

Domy, Rodinné domy

022

20.02.2026

1

130 m2

85 m2

D - Méně úsporná

Cena: 3490000 CZK / objekt
Prodejce

Makléř: Realitní poradce 501

Telefon: 778 077 ...

E-mail: realitni ...

Zobrazit celý kontakt
Poslat dotaz k nabídce
Zásady používání osobních údajů

Nemovitost nabízí

/loga_velka/9738.jpg

REALITNÍ AGENTURA PRORADOST

Vídeňská 1014/18b, 63900 Brno - Štýřice

www.reality-proradost.cz

Zobrazit kontakt na RK

Zobrazit všechny nabídky RK

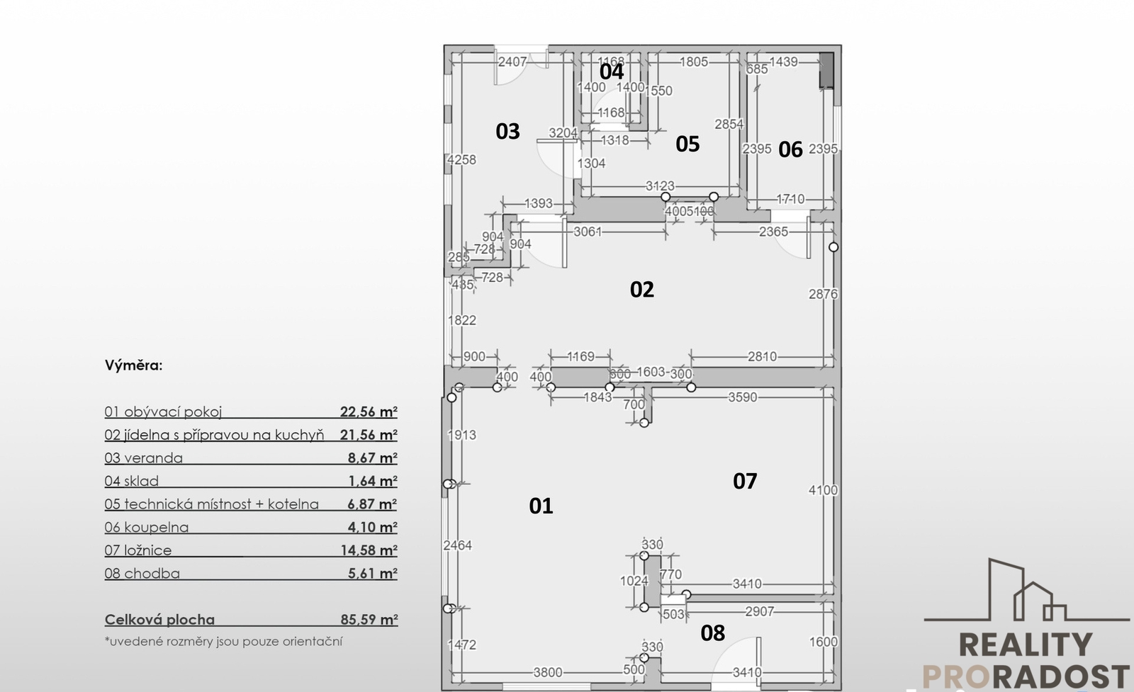
Hledáte rodinný dům, kam se můžete ihned nastěhovat? Pak doražte do Netřebic - menší vesničky vzdálené 20 minut autem od krajského města. Na pozemku o celkové ploše 173 m2 se nachází dům s obytným přízemím a prostornou prázdnou půdou vhodnou k vestavbě dalších dvou pokojů a druhé koupelny. Ateliérové uspořádání přízemí Vás na první pohled zaujme a velký prostor v zadní části to jen podtrhne. Hned za ní je prostorná koupelna s vanou a WC a úplně vzadu pak najdete kotelnu s el. kotlem a bojlerem, velkou verandu vhodnou např. jako zimní zahradu a vstup na zmiňovanou půdu. Obývací pokoj je propojen s ložnicí a vytváří tak jeden velký otevřený prostor. Dům prošel rozsáhlou rekonstrukcí - plastová okna, ústřední topení, omítky, podlahy, rozvody, fasáda, střecha. Je napojen na obecní vodovod i kanalizaci a samozřejmě elektřinu. Plyn v obci je. Auta můžete pohodlně parkovat na svém pozemku přímo před domem. Veškerou občanskou vybavenost najdete v nedaleké Kaplici a na Lipno to budete mít skoro stejně daleko jako do Budějovic. Strategická poloha k dálnici D3 a do Rakouska. Tak se přijeďte přesvědčit na vlastní oči.



Nahoru