Prodej bytu 2+1, 57,3 m2 s předzahrádkou 34,4,m2, Praha 6 - Ruzyně.
Makléř: Skvirsky Jana
Telefon: 775 574 ...
E-mail: jana.skv ...
Zobrazit celý kontaktTelefon: 775 574 893
E-mail: jana.skvirsky@housevip.cz
prodej
Stočesova
01342
29.04.2026
1 (dům má 5 podlaží)
družstevní
92 m2
57 m2
G - Mimořádně nehospodárná
Makléř: Skvirsky Jana
Telefon: 775 574 ...
E-mail: jana.skv ...
Zobrazit celý kontaktTelefon: 775 574 893
E-mail: jana.skvirsky@housevip.cz
Nemovitost nabízí
House ViP, s.r.o.
Veletržní 924/14, 170 00 Praha - Holešovice
Zobrazit kontakt na RK
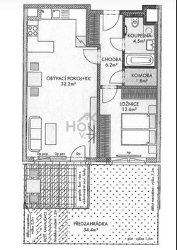
Nabízíme Vám postoupení družstevního bytu 2+1 o výměře 57,3 m2 s předzahrádkou 34,4 m2 ve 1. nadzemním podlaží cihlové novostavby moderní Rezidenci U Šárky, Stočesova ul., Praha 6 - Ruzyně. Částka za postoupení je 4.600.000,- Kč. Zbývající anuita je ve výši 6.000.000,- Kč. Celková cena 10.600.000,- Kč. Vzhledem k tomu, že se jedná o družstevní byt, cenu splácíte formou nájmu. Neprokazujete výši příjmu, nepotřebujete hypoteční úvěr a byt je možné převést do osobního vlastnictví kdykoli v průběhu splacení anuity. Anuitu můžete samozřejmě také kdykoli doplatit a byt si převést do osobního vlastnictví. Vzhledem k aktuálnímu navýšení úrokových sazeb na hypotečním trhu, nabízí anuitní splácení nemovitosti výhodnější financování. (Sazba je 4,85% s fixací na 5 let). Byt je v současné době lukrativně pronajat. Byt je orientovaný na východ s výhledem do zeleně. V docházkové vzdálenosti je mnoho možností k relaxaci a sportu - přírodní rezervace Divoká Šárka a Obora Hvězda. Výborné dopravní spojení do města, 3 min. na MHD, 12 min. metro "A", zast. Nádraží Veleslavín, na Letiště Václava Havla Praha jen 9 min. Atraktivní bydlení doplňuje skvělá poloha domu, v přímé blízkosti se nachází veškerá občanská vybavenost včetně škol, školek, lékařů, obchodů a restaurací - jen 5 min, v blízké vzdálenosti je OC Šestka. Doporučujeme.
Prodej, Byt 2+1, Praha 6
Prodej bytu 2+1/L, 53 m2, OV, ul. Kamerunská, Praha 6, nacházejícího se v 2. patře udržovaného panelového domu po kompletní revitalizaci v dosahu…
Prostorný byt 2+1, 82 m2 po rekonstrukci, metro Vltavská - Holešovice, výhled na Petřín a v budoucnu budovu Vltavské filharmonie
Prostorný (82 m2) světlý (orientace jihozápad/východ) byt 2+1 po celkové rekonstrukci z roku 2019 se sklepem (3 m2) ve druhém patře udržovaného…