Vybírejte z nabídky 38 436 nemovitostí od 771 realitních kanceláří
lupa mobilní menu
Přehled nemovitostí: pronájem komerční > skladové prostory > Hostivice Zpět na přehled nabídek

SEGRO Logistics Park Prague, Hostivice

foto02_11454086_erxro.jpg foto02_11454086_uiqv0.jpg foto02_11454086_16dr5s.jpg foto02_11454086_1f0mio.jpg foto02_11454086_2mis.jpg Aktivní
Prodejce

Makléř: Roman Kučera

Telefon: 222 703 ...

E-mail: roman.ku ...

Zobrazit celý kontakt

pronájem

Hostivice (okres Praha-západ)

Průmyslová

Komerční, Skladové prostory

03547

20.04.2026

neuvedeno

G - Mimořádně nehospodárná

Cena: na dotaz v RK
Poznámka k ceně: info v RK, bez poplatků 1
Prodejce

Makléř: Roman Kučera

Telefon: 222 703 ...

E-mail: roman.ku ...

Zobrazit celý kontakt
Poslat dotaz k nabídce
Zásady používání osobních údajů

Nemovitost nabízí

/loga_velka/7877.webp

Marion management

Za Sedmidomky 15, 101 00 Praha

Zobrazit kontakt na RK

Zobrazit všechny nabídky RK

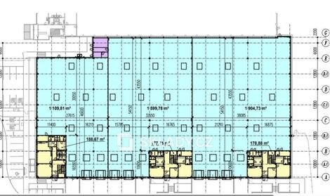
SEGRO Logistics Park Prague těží ze své strategické polohy nedaleko centra Prahy a letiště Václava Havla. Park je umístěn v blízkosti dálnice R6 (Praha - Karlovy Vary ) a pražského okruhu, čímž je zabezpečeno přímé napojení na dálnici D5 (Praha - Plzeň - Německo) a D1 (Praha - Brno - Ostrava - Polsko; Praha - Slovenská republika). Jedná se o skvělou příležitost pro zákazníky z oblasti logistiky, maloobchodu a lehké výroby. K dispozici od 01/2027 skladová hala o velikosti 5 700 m2 : 4.600 m2 (hala) 1.100 m2 (kanceláře) jednotky lze dělit od velikosti 1 110 m2. Technické specifikace: světlá skladová výška 9 m nabíjecí stanice pro elektromobily nosnost podlahy 5 t/m2 ESFR sprinklerový systém světlíky a požární klapky přímé vjezdy, nakládací můstky s elektricky ovládanými vraty fotovoltaické panely (FV) plánovaná certifikace: BREEAM New Construction úroveň Excellent Na našem portále najdete více než 700 skladových hal v ČR a na Slovensku. Rádi pro klienta zdarma zpracujeme aktuální přehled nabídek v požadované lokalitě a v rámci našeho zastoupení zajistíme pro klienta nevýhodnější podmínky nájmu. V případě zájmu o tuto či jinou nemovitost nás neváhejte kontaktovat a zajistěte si prohlídku ještě dnes.



Nahoru