Pronájem, Byt 3+kk, Praha 1
Makléř: Ing. Jan Novotný
Telefon: 606 122 ...
E-mail: jan.novo ...
Zobrazit celý kontaktTelefon: 606 122 200, 606 122 200
E-mail: jan.novotny@qara.cz
pronájem
Soukenická
18919
23.02.2026
3 (dům má 4 podlaží)
osobní
71 m2
71 m2
G - Mimořádně nehospodárná
Makléř: Ing. Jan Novotný
Telefon: 606 122 ...
E-mail: jan.novo ...
Zobrazit celý kontaktTelefon: 606 122 200, 606 122 200
E-mail: jan.novotny@qara.cz
Nemovitost nabízí
QARA s.r.o.
Šafaříkova 201/17, 120 00 Praha 2
Zobrazit kontakt na RK
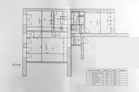
Nabízím Vám zprostředkování pronájmu bytu 3+kk o velikosti 71m2 v centru Prahy, v ulici Soukenická, kousek od náměstí Republiky. Byt po kompletní rekonstrukci se nachází ve 3. patře činžovního domu bez výtahu. V klimatizovaném obývacím pokoji s kuchyňským koutem najdete kompletně vybavenou kuchyňskou linku (velká americká lednice, myčka, plynová varná deska, horkovzdušná trouba, digestoř), barový jídelní stůl propojený s kuchyňskou linkou, gauč a televizní komodu. Na obývací pokoj navazuje hlavní ložnice s manželskou postelí a velkou vestavěnou skříní, propojená s designovou koupelnou. V ní najdete velkou vanu a toaletu. Další ložnice je vybavenou velkou, samostatně stojící skříní. Další úložné prostory v bytě zajišťují vestavěné skříně ve vstupní chodbě. V bytě najdete i druhou koupelnu, se sprchovým koutem a toaletou. V obytné části jsou laminátové podlahy, v koupelně a vstupní chodbě dlažba. Vytápění a ohřev teplé vody je řešeno plynovým kotlem. V bytě jsou nainstalované bezpečnostní vstupní dveře, prvky inteligentního ovládání domácnosti a elektricky ovládané rolety. Zajímavostí bytu jsou zachované původní historické prvky, včetně špaletových oken. Byt se nachází v centru Prahy, v v oblíbené části Petrská čtvrť. V bezprostředním okolí najdete vše potřebné pro život i zábavu - obchodní centrum Palladium a Kotva (možno dlouhodobě pronajmout parkovací stání), nepřeberné množství kaváren, restaurací a bister, multikino, stanici metra i tramvaje, i oblíbenou pražskou náplavku. Záloha na spotřebu a služby 3 000 Kč měsíčně, ročně vyúčtované dle skutečné spotřeby. Smlouva na dodávku elektrické energie a plynu se převádí na nájemníka - odhadované měsíční náklady cca 4 - 5tis.Kč měsíčně. Třída energetické náročnosti G, jelikož se jedná o budovu v historickém centru města. Hledáme dlouhodobého solidního nájemce, nastěhování možné od 1.dubna 2026. Neplatíte provizi RK! Vratná kauce ve výši dvou měsíčních nájmů.
Pronájem luxusního bytu 3+kk (95 m2), parkovací místo, náměstí Jiřího z Poděbrad, Vinohrady
Zcela nový zrenovovaný nadstandardní a částečně zařízený byt 3+kk s krásným výhledem a parkovacím místem na náměstí Jiřího z Poděbrad s…
Doporučujeme částečně zařízený byt v rezidenční části Prahy 3 - Vinohrad, 3+kk (69,3m2) plus balkon (3,2m2), Soběslavská ul.
Dovolujeme si vám exkluzivně nabídnout k dlouhodobému pronájmu výjimečný byt po kompletní rekonstrukci, nacházející se ve 3.podlaží cihlového domu s…