Vybírejte z nabídky 36 352 nemovitostí od 559 realitních kanceláří
lupa mobilní menu
Přehled nemovitostí: prodej byty > 4+1 > Liberec Zpět na přehled nabídek

Prodej, Byt 4+1, Liberec

Prodejce

Makléř: Daniela Vorlíková

Telefon: 775 033 ...

E-mail: daniela. ...

Zobrazit celý kontakt

prodej

Liberec (okres Liberec)

Pazderkova

Byty, Byt 4+1

18916

23.02.2026

2 (dům má 8 podlaží)

osobní

neuvedeno

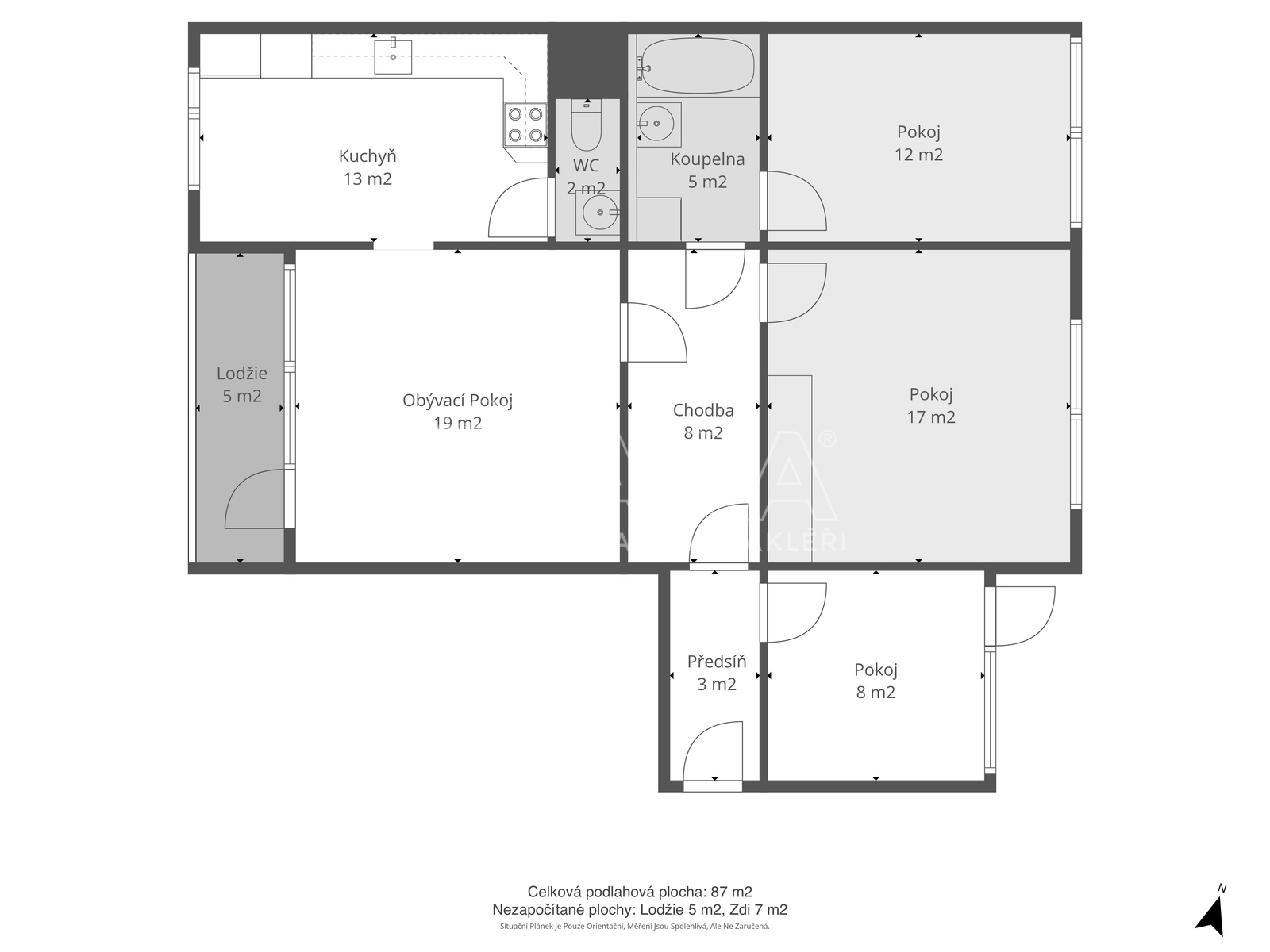
87 m2

D - Méně úsporná

Cena: 5490000 CZK / objekt
Prodejce

Makléř: Daniela Vorlíková

Telefon: 775 033 ...

E-mail: daniela. ...

Zobrazit celý kontakt
Poslat dotaz k nabídce
Zásady používání osobních údajů

Nemovitost nabízí

/loga_velka/9877.webp

QARA s.r.o.

Šafaříkova 201/17, 120 00 Praha 2

www.qara.cz

Zobrazit kontakt na RK

Zobrazit všechny nabídky RK

Hledáte větší byt, ale nechcete platit cenu klasického 4+1? Tato nabídka vám umožní získat komfort čtyř pokojů za cenu bytu 3+1. Předmětem prodeje je bytová jednotka v osobním vlastnictví o dispozici 3+1 a výměře 75 m2 + 5 m2 lodžie. Díky další samostatné místnosti o velikosti 8 m2, (která byla dříve užívána jako sušárna pro obyvatele patra, ale je v praxi součástí bytu - viz půdorys), je dlouhodobě pronajata a byt je tak v praxi užíván jako plnohodnotný 4+1. Budoucí vlastník tak bude mít k dispozici celkovou užívanou plochu 87 m2. • pronajatá místnost 8 m2 - nájemné 1 000 Kč / měsíc • sklepní prostor 15 m2 - nájemné 1 500 Kč / rok • možnost pronájmu garáže nacházející se hned před domem Nemovitost se nachází v klidné části města Liberec s kompletní občanskou vybaveností v docházkové vzdálenosti. V okolí naleznete školy, školky, obchody, zdravotní služby, zastávky MHD i dostatek zeleně pro volnočasové aktivity. Lokalita nabízí výbornou dostupnost do centra města i rychlé napojení směrem do přírody. Tato nabídka představuje zajímavou příležitost získat prostorné rodinné bydlení s dispozicí 4+1. Pro více informací nebo sjednání prohlídky mne neváhejte kontaktovat.



Nahoru