Prodej stavebního pozemku v Jeníkovicích, Jeníkovice
Makléř: Horský Lukáš
Telefon: 736 600 ...
E-mail: lhorsky@ ...
Zobrazit celý kontaktTelefon: 736 600 424
E-mail: lhorsky@max-sc.cz
prodej
Jeníkovice (okres Hradec Králové)
Pozemky, Pozemky pro stavbu RD, bytů
70
23.02.2026
2 633 m2
Makléř: Horský Lukáš
Telefon: 736 600 ...
E-mail: lhorsky@ ...
Zobrazit celý kontaktTelefon: 736 600 424
E-mail: lhorsky@max-sc.cz
Nemovitost nabízí
MAX SERVISNÍ CENTRUM s.r.o.
nám. T.G.M. 10, Holice
Zobrazit kontakt na RK
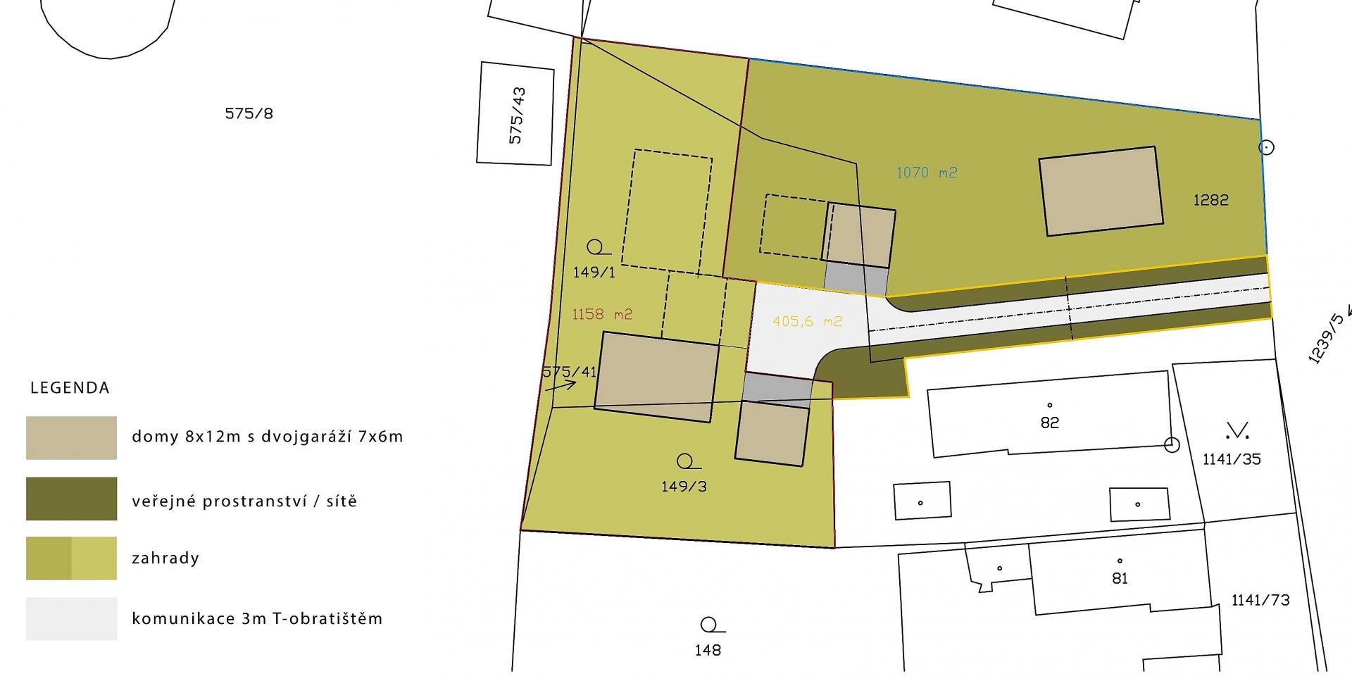
Nabízíme k prodeji stavební pozemek o celkové rozloze 2 633 m2 v obci Jeníkovice, nedaleko Třebechovic pod Orebem a jen 15 minut jízdy od Hradce Králové. Pozemek se nachází kousek od centra obce, přímo u komunikace protínající obec. Je mírně svažitý, veškeré sítě jsou k dispozici u hranice pozemku s místní komunikací. Pozemek je dle územního plánu určen k zastavění stavbou rodinného domu s maximálně dvěma nadzemními podlažími + podkroví. Vzhledem k jeho celkové ploše se nabízí i rozdělení na dvě stavební parcely, jehož možné řešení vám také nabízíme. Obec Jeníkovice u Třebechovic pod Orebem je klidná vesnice s přibližně 520 obyvateli, která nabízí základní občanskou vybavenost včetně mateřské školy, pošty, obchodu s potravinami, knihovny a hostince. V obci fungují aktivní spolky a k dispozici je sportovní hřiště i kulturní zázemí. Dopravní spojení zajišťuje autobusová linka do Třebechovic a Hradce Králové, odkud je dostupná širší infrastruktura včetně základních a středních škol. Jeníkovice jsou ideálním místem pro rodinné bydlení v dosahu města, ale s venkovským klidem. Více informací vám rádi sdělíme v realitní kanceláři.
Prodej, Pozemek pro stavbu RD, bytů, Nepolisy
Prodej pozemku určeného k bydlení o velikosti 1 563 m2 v absolutně klidné části obce Zadražany, okres Hradec Králové. Pozemek je rovinatý a je na něj…
Pozemek, bydlení, prodej, Kladruby, Chlumec nad Cidlinou, Hradec Králové
Nabízíme pozemek pro stavbu rodinného domu o výměře 1056 m2 v projektu budoucí rodinné zástavby v Chlumci nad Cidlinou. Realizace zasíťování pozemků…
Prodej stavebního pozemku Jeníkovice na Eurobydleni.cz