Vybírejte z nabídky 36 200 nemovitostí od 790 realitních kanceláří
lupa mobilní menu
Přehled nemovitostí: prodej byty > 3+1 > Pardubice Zpět na přehled nabídek

Prodej bytu 3+1 67,60 m2 s lodžií, Pardubice - Pardubičky

Prodejce

Makléř: Kolenović Hilmo

Telefon: 724 287 ...

E-mail: hilmo.ko ...

Zobrazit celý kontakt

prodej

Pardubice (okres Pardubice)

U Borku

Byty, Byt 3+1

00206

24.02.2026

4 (dům má 5 podlaží)

osobní

72 m2

68 m2

B - Velmi úsporná

Cena: 4990000 CZK / objekt
Poznámka k ceně: včetně provize, včetně právního servisu 1
Prodejce

Makléř: Kolenović Hilmo

Telefon: 724 287 ...

E-mail: hilmo.ko ...

Zobrazit celý kontakt
Poslat dotaz k nabídce
Zásady používání osobních údajů

Nemovitost nabízí

/loga_velka/10004.webp

Reality Kolenović s.r.o.

Gorkého 1243, 530 02 Pardubice

www.realitykolenovic.cz

Zobrazit kontakt na RK

Zobrazit všechny nabídky RK

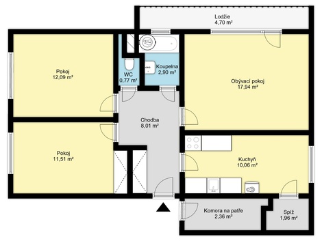
Nabízíme k prodeji prostorný, světlý 3+1 v klidné a žádané lokalitě Pardubice - Pardubičky. Byt je v původním, ale udržovaném stavu a je vhodný k rekonstrukci dle představ budoucího majitele. Co tento byt nabízí: • Dispozice 3+1 ve 3. patře zděného bytového domu • Orientace bytu na západ a jihozápad pro dostatek slunce a přirozeného světla • Zasklená lodžie, prostorná komora na patře, přímo u bytu • Zateplený dům, PENB B • Vytápění - vlastním plynovým kotlem, ohřev vody zajišťuje elektrický bojler • Klidná a žádaná lokalita v Pardubicích v těsné blízkosti lesoparku pro relaxaci i volnočasové aktivity • Mateřská a základní škola, krajská nemocnice, Penny Market, lékárna - vše dostupné do několika minut • Bezplatné parkování v okolí domu Pro koho je tento byt ideální? • Rodiny s dětmi - dostatek prostoru a skvělá lokalita v blízkosti přírody • Páry plánující budoucnost - rozumná investice do vlastního bydlení • Investory - výborný potenciál k pronájmu v oblíbené lokalitě Nenechte si ujít tuto zajímavou příležitost! Tento byt nabízí perfektní kombinaci pohodlí, praktičnosti a výhodné polohy. V inzerátu jsou použity vizualizace. Podlahové plochy místností jsou pouze orientační a byly zjištěny měřením. Majitel si vyhrazuje právo výběru kupujícího. Financování koupě nemovitosti Vám rádi zdarma zajistíme prostřednictvím našeho partnera. Pokud Vás tento byt zaujal, kontaktujte makléře a domluvte si prohlídku.



Nahoru