Pronájem byty 2+kk, 45 m2 - Praha - Kobylisy
Makléř: Kubát Lukáš
Telefon: 778 526 ...
E-mail: lukas.ku ...
Zobrazit celý kontaktTelefon: 778 526 990
E-mail: lukas.kubat@bohemianestates.com
pronájem
Kyselova
N08877
24.02.2026
3 (dům má 8 podlaží)
osobní
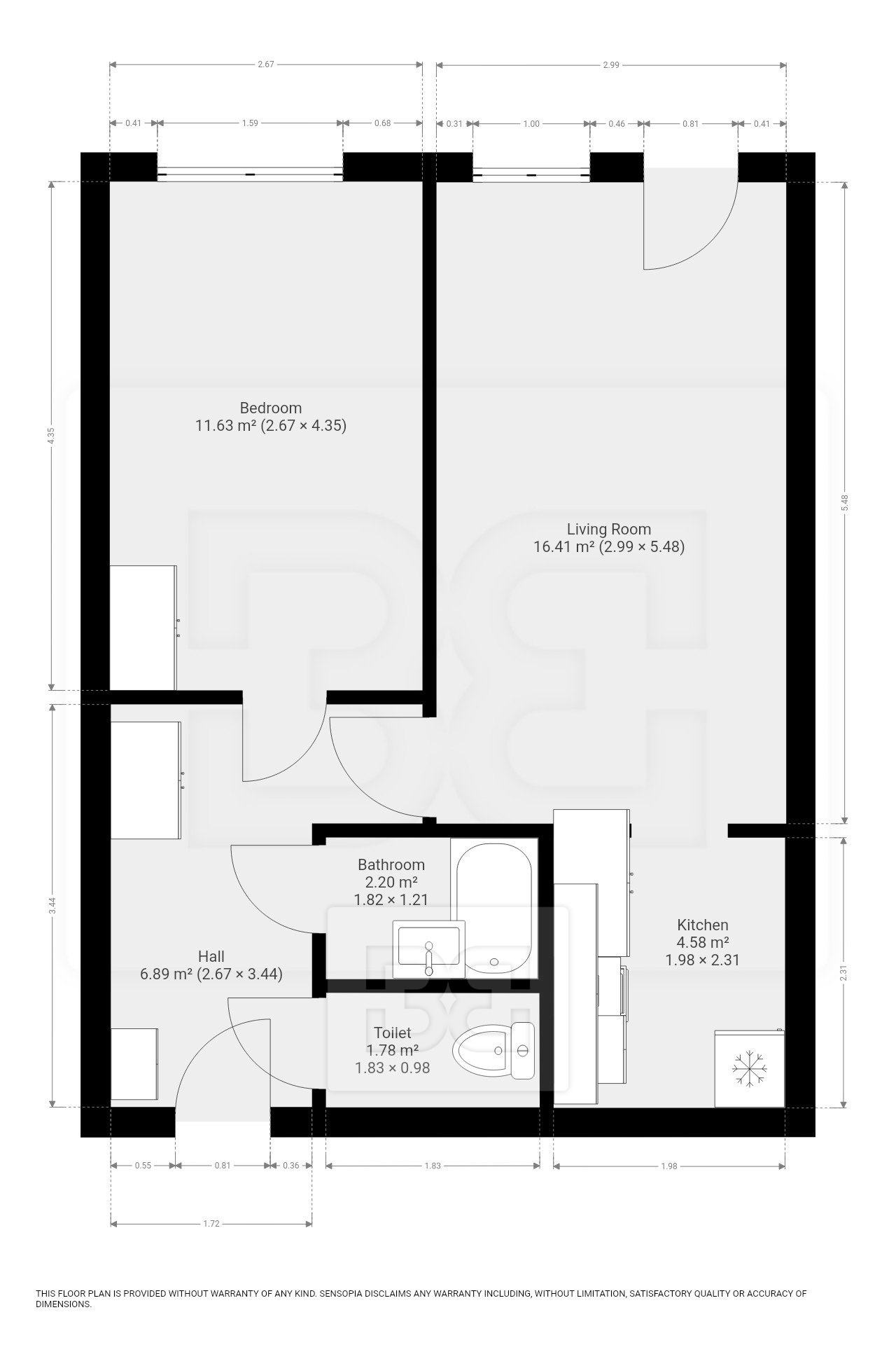
45 m2
45 m2
C - Úsporná
Makléř: Kubát Lukáš
Telefon: 778 526 ...
E-mail: lukas.ku ...
Zobrazit celý kontaktTelefon: 778 526 990
E-mail: lukas.kubat@bohemianestates.com
Nemovitost nabízí
Bohemian Estates International s.r.o.
Francouzská 30, 120 00 Praha 2
Zobrazit kontakt na RK774 007 884
K nastěhování od 1.4.2026. Nabízíme k pronájmu byt o dispozici 2+kk, s plochou 45 m2, který se nachází ve 3. nadzemním podlaží dobře udržované budovy situované v blízkosti metra Ládví. Byt je vybaven kuchyňskou linkou se spotřebiči (lednice s mrazákem, sporák). Obývací část je nevybavený. V ložnici se nachází šatní skříň. Další úložný prostor je v předsíni bytu. Koupelna je vybavena vanou. Toaleta je umístěna samostatně. V místě je výborná občanská vybavenost - obchody, služby, restaurace, pošta, lékárna. V docházkové vzdálenosti od domu je autobusová, tramvajová zastávka a stanice metra Ládví. Měsíční nájem - 18900 Kč, záloha za služby spojené s užíváním bytu 3500 Kč + elektřina, kauce 22400 kč, provize 18900 kč + dph. Velkou výhodou pro potenciální nájemce je, že objekt je v profesionální správě společnosti Bohemian Estates, jenž správu pro majitele tohoto objektu vykonává. Nájemci je k dispozici kontaktní osoba, která obratem řeší veškeré záležitosti s nájmem spojené (pravidelná údržba i havarijní zásahy vlastními techniky, vyúčtování, dodatky, apod.). Nájemci je tak zajištěno bezproblémové užívání bytu s kompletním servisem.
Nabízíme k pronájmu byt 2 + 1 s balkonem, 75 m2, Helmova - Nové Město.
Nabízíme k pronájmu byt 2 + 1 s balkonem, 75 m2, Helmova - Nové Město. Byt se nachází v 3 patře cihlového domu v centru historické části Prahy 1. Byt…
Útulný byt 2+kk, 47 m v srdci Břevnova k pronájmu
Nabízíme k pronájmu útulný a dobře dispozičně řešený byt 2+kk o celkové výměře 47 m, který se nachází v přízemí cihlového domu ve vyhledávané…