Vybírejte z nabídky 39 392 nemovitostí od 767 realitních kanceláří
lupa mobilní menu
Přehled nemovitostí: prodej domy > činžovní domy > Opava Zpět na přehled nabídek

Rezidence Krnovská 9, Opava

Prodejce

Makléř: Josef Květon

Telefon: 733 777 ...

E-mail: josef.kv ...

Zobrazit celý kontakt

prodej

Opava (okres Opava)

Krnovská

Domy, Činžovní domy

1622

5

neuvedeno

neuvedeno

G - Mimořádně nehospodárná

Cena: 10500000 CZK / objekt
Poznámka k ceně: Včetně provize, včetně právního servisu 1
Prodejce

Makléř: Josef Květon

Telefon: 733 777 ...

E-mail: josef.kv ...

Zobrazit celý kontakt
Poslat dotaz k nabídce
Zásady používání osobních údajů

Nemovitost nabízí

/loga_velka/1562.webp

Byrfin real estate

U panského dvora 2, 746 01 Opava

www.reality.byrfin.cz

Zobrazit kontakt na RK

Zobrazit všechny nabídky RK

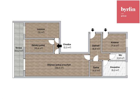
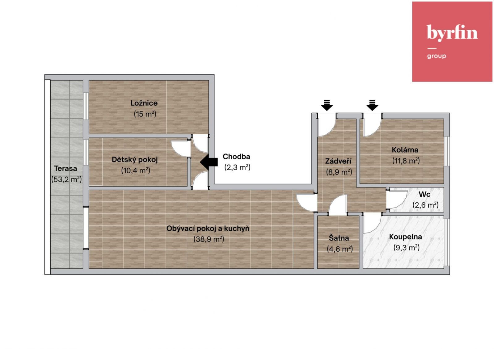
Nabízíme ke koupi kompletně připravený developerský projekt se stavebním povolením - Rezidence Krnovská 9, Opava. Jedná se o demolici stávajícího objektu a následnou výstavbu nového moderního pětipodlažního bytového domu s devíti bytovými jednotkami, situovaný v atraktivní lokalitě v Opavě, na ulici Krnovská kousek od nákupního centra OC Breda & Weinstein. Projektová dokumentace je detailně zpracovaná studiem ARCHES a obsahuje všechny části nutné pro realizaci stavby. Projekt je připraven k okamžitému zahájení výstavby. Základní informace o projektu: Adresa: Krnovská 12/9, Opava - Předměstí Parcelní číslo: st. 199/1 Celkový počet bytů: 9 Dispozice: 8× byt 3+kk, 1× byt 2+kk Celková plocha bytů: 555 m Podlaží: 1.PP + 1.NP + 2.-5.NP Zastavěná plocha objektu: 180 m Výmera pozemku: 229 m Parkovací místa: 9 (z toho 1 místo ZTP) Objekt není památkově chráněn Projekt je v souladu s územním plánem (zóna UA - smíšené obytné) Technické zázemí domu: V 1. podzemním podlaží se nachází technická místnost a sklepní koje určené pro jednotlivé byty. V přízemí je k dispozici kolárna pro bezpečné uložení kol a kočárků. Dispozice a struktura bytů: 1. NP: Jeden prostorný byt 3+kk o velikosti 96 m se soukromou zahradou 49 m a vlastní terasou. 2.-4. NP: Každé patro obsahuje dva byty 3+kk, každý o velikosti 59 m. Byty jsou doplněny balkonem o velikosti 14-16 m. 5. NP: Jeden byt 2+kk o velikosti 46 m s balkonem 16 m a jeden byt 3+kk o velikosti 59 m s balkonem 14 m. Architektonické řešení: Projekt počítá s demolicí stávajícího objektu a následnou výstavbou nového moderního pětipodlažního bytového domu. Návrh zahrnuje současnou architekturu se skleněnými fasádními prvky orientovanými do ulice Krnovská, které dodají budově čistý a reprezentativní vzhled. Na straně do vnitrobloku jsou navrženy balkony a v 1. NP také soukromá zahrada zajišťující klidné rezidenční prostředí. Nový objekt je navržen tak, aby citlivě doplnil okolní zástavbu a přinesl do lokality kvalitní moderní bydlení. Lokalita: Projekt se nachází v zastavěné části města Opavy, v docházkové vzdálenosti od centra. Lokalita nabízí kompletní občanskou vybavenost, přímé napojení na MHD, obchody, služby, školy a dobré dopravní spojení díky blízkosti městského obchvatu. Pozemek je plně napojen na veškeré inženýrské sítě. Pro koho je projekt vhodný: Projekt je ideální pro developera, investora nebo stavební společnost, která hledá plně připravený záměr se stavebním povolením. Díky dispozičnímu řešení, balkonům, zahradě a lokalitě je projekt vhodný jak pro následný prodej bytů, tak i pro dlouhodobý nájemní model. V případě zájmu o detailní dokumentaci, osobní schůzku nebo další informace mě neváhejte kontaktovat. S vyřízením financování tohoto projektu vám rádi pomůžeme.




Prodej činžovního domu Opava na Eurobydleni.cz


Nahoru