Nebytový prostor 83m2, snížené přízemí, Praha 3 Hartigova
Makléř: Hubáček Karel
Telefon: 420 602 ...
E-mail: karel.hu ...
Zobrazit celý kontaktTelefon: 420 602 278 512
E-mail: karel.hubacek@century21.cz
prodej
Hartigova
948567
osobní
83 m2
G - Mimořádně nehospodárná
Makléř: Hubáček Karel
Telefon: 420 602 ...
E-mail: karel.hu ...
Zobrazit celý kontaktTelefon: 420 602 278 512
E-mail: karel.hubacek@century21.cz
Nemovitost nabízí
CENTURY 21 Premium
Zlatnická 1582/10, 110 00 Praha 1
www.century21.cz/kancelar/premium/
Zobrazit kontakt na RK603 892 407
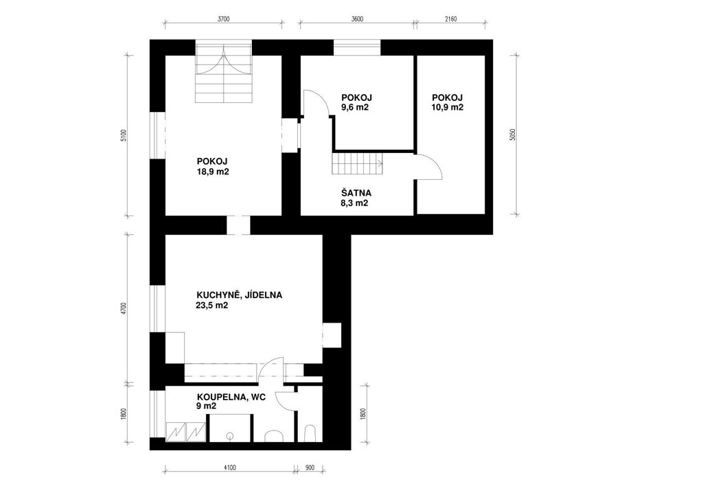
Nabízíme exkluzivně nebytový prostor s dispozicí 3+1 + sklad o celkové výměře 83,2 m2 umístěný ve sníženém přízemí cihlového domu po rekonstrukci v ulici Hartigova, Praha 3 Žižkov. Nebytový prostor prošel rekonstrukcí, je zde vstup přímo z ulice. Prostor byl využíván k obchodním účelům a v posledních letech i částečně k bydlení. Díky tomu je v prostorách k dispozici koupelna se sprchovým koutem, toaleta a zázemí, které tvoří kuchyňský kout oddělený od jídelního prostoru barovým pultem. Současná dispozice je zařízena jako bytová jednotka 3+1 se šatnou. Ve všech místnostech je na podlahách položena světlá dlažba, vytápění je rozvedeno radiátory a je napojeno na vlastní elektrokotel, teplou vodu zajišťuje el. bojler o obsahu 120l. Kuchyňská linka je vybavena varnou sklokeramickou deskou zn. Gorenje, elektrickou vestavnou troubou zn. Samsung, mikrovlnnou troubou zn. Baumatic a kombinovanou lednicí s mrazákem zn. Amica. Koupelna je vybavena moderním sprchovým koutem, pračkou zn. LG a sušičkou zn. Whirlpool. Dům prošel rekonstrukcí fasády, střech a a rozvodů vody a odpadů v domě. Je zde výborná dopravní dostupnost MHD autobusy, v docházkové vzdálenosti je tramvaj (zastávka Ohrada), v okolí jsou restaurace a různé obchůdky masna, květinářství, smíšené zboží aj. Na dohled je rozsáhlý park "Vítkov". Prostor má okna do ulice, vstup je z ulice Hartigova, okna s obytného prostoru, kuchyně a koupelny jsou orientovány do vedlejší ulice Hájkova. Svou dispozicí a výměrou je vhodný jak pro obchod, ale i kanceláře. Doporučuji prohlídku, kterou Vám rád zprostředkuji.
Prodej obchod a služby, 20 m2, Praha, ul. Zelenohorská
Prodej nebytového prostoru / skladu 20 m2 - Praha 8, Bohnice Nabízím k prodeji nebytový prostor o velikosti 20 m2 v osobním vlastnictví, který se…
Prodej exkluzivního komerčního prostoru 192 m2 v projektu Harfa Living, Vysočany
Největší rezidenční stavitel Central Group v přízemí svých velkých bytových projektů v Praze nabízí k prodeji komerční prostory ve stavu SHELL&CORE.…