Prodej bytu 3+kk, 120m, Praha 5 - Smíchov, ul. Drtinova.
Makléř: Gagarin Sergei
Telefon: 775 619 ...
E-mail: gagarin@ ...
Zobrazit celý kontaktTelefon: 775 619 222
E-mail: gagarin@glj-partners.cz
prodej
Drtinova
GS113
4 (dům má 6 podlaží)
osobní
neuvedeno
neuvedeno
C - Úsporná
Makléř: Gagarin Sergei
Telefon: 775 619 ...
E-mail: gagarin@ ...
Zobrazit celý kontaktTelefon: 775 619 222
E-mail: gagarin@glj-partners.cz
Nemovitost nabízí
GLJ Partners
Šenácká 583/6, Praha 4 Hodkovičky
Zobrazit kontakt na RK
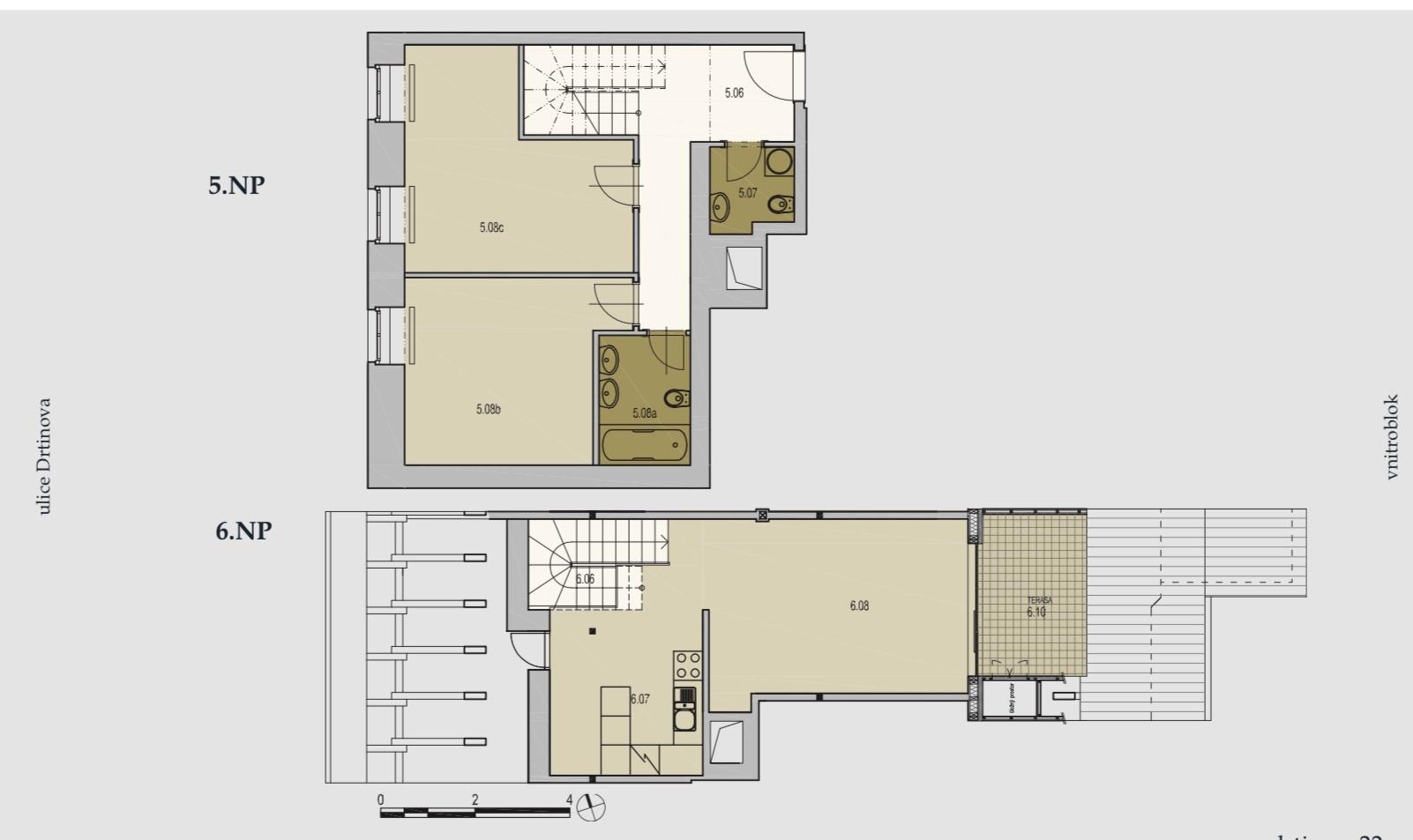
GLJ Partners nabízí ke koupi výjimečný mezonetový byt 3+kk s terasou a dechberoucím výhledem na Prahu, nacházející se v 5. a 6. nadzemním podlaží zrekonstruovaného cihlového domu s výtahem v ulici Drtinova, Praha 5 Smíchov. ID: GS113 Adresa: ul. Drtinova, Praha 5 Smíchov Plocha: 119,8 m Cena: 16.900.000 Kč Sklep: 6,8 m Terasa: 7,48 m K nastěhování: ihned Byt je výjimečně světlý a vzdušný, s velkoformátovými okny orientovanými na východ (obývací pokoj) a západ (ložnice). Dominantou bytu je prostorný obývací pokoj s moderním kuchyňským koutem o velikosti 33,01 m a vstupem na terasu 7,48 m s panoramatickým výhledem na celou Prahu. V dolním podlaží se nachází dvě neprůchozí ložnice o rozloze 17,27 m a 15,65 m. Prostorná chodba se schodištěm má výměru 19,87 m. Dále je zde koupelna s vanou (4,95 m) a samostatné WC (2,86 m). V celém bytě jsou kvalitní plovoucí dřevěné podlahy, v koupelně a na toaletě praktická dlažba. Komfort zajišťuje klimatizace a bezpečnostní vstupní dveře. K bytu náleží sklepní kóje o velikosti 6,8 m, umístěná v -1. podlaží domu. Veškeré vybavení je zahrnuto v ceně. Byt se nachází v prestižní části Smíchova s kompletní občanskou vybaveností v docházkové vzdálenosti jsou supermarkety Tesco a Albert, nákupní centrum Nový Smíchov, školy, školky, parky a dětská hřiště. Tramvajová zastávka Švandovo divadlo je vzdálena 3 minuty chůze, stanice metra Anděl cca 10 minut. V bezprostředním okolí se nachází zelené plochy jako Zahrada Kinských a Petřínské sady ideální pro volnočasové aktivity. V případě zájmu vám rádi pomůžeme zajistit výhodné financování prostřednictvím hypotečního úvěru na míru. K dispozici je kompletní právní servis, advokátní úschova a převod vlastnictví na katastru.
Stylový byt 3+kk s balkónem, 136 m2, ul. Růžová, Praha 1
Nadstandardní stylový byt s menším balkónem, o dispozici 3+kk a celkové ploše 136 m2, umístěný ve 3.NP reprezentativního činžovního domu s výtahem,…
Prodej bytu 3+kk o velikosti 82,5 m2 - Praha - Újezd nad Lesy
Nové bydlení v bytových domech ve vlastním rezidenčním areálu Nechte se pozvat na prohlídku Vašeho nového domova v Újezdě nad Lesy. Bytový projekt…
Prodej bytu 3+kk Praha 5, Smíchov na Eurobydleni.cz