Vybírejte z nabídky 37 529 nemovitostí od 817 realitních kanceláří
lupa mobilní menu
Přehled nemovitostí: prodej byty > 2+kk > Šlapanice Zpět na přehled nabídek

Prodej bytu 2+kk 67 m2, Šlapanice

Prodejce

Makléř: Krejčí Jana

Telefon: 733 636 ...

E-mail: reality@ ...

Zobrazit celý kontakt

prodej

Šlapanice (okres Brno-venkov)

Byty, Byt 2+kk

00023

25.12.2025

1 (dům má 2 podlaží)

osobní

80 m2

66 m2

G - Mimořádně nehospodárná

Cena: 9993930 CZK / objekt
Poznámka k ceně: včetně DPH, včetně poplatků, včetně provize, včetně právního servisu 1
Prodejce

Makléř: Krejčí Jana

Telefon: 733 636 ...

E-mail: reality@ ...

Zobrazit celý kontakt
Poslat dotaz k nabídce
Zásady používání osobních údajů

Nemovitost nabízí

/loga_velka/10438.webp

LUX Real s.r.o.

Řípská 1181/18, Brno

www.janakrejci.com

Zobrazit kontakt na RK

Zobrazit všechny nabídky RK

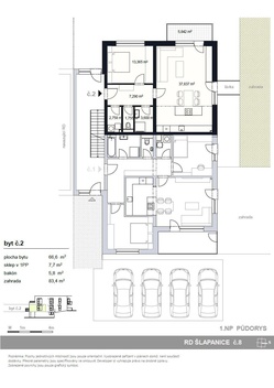
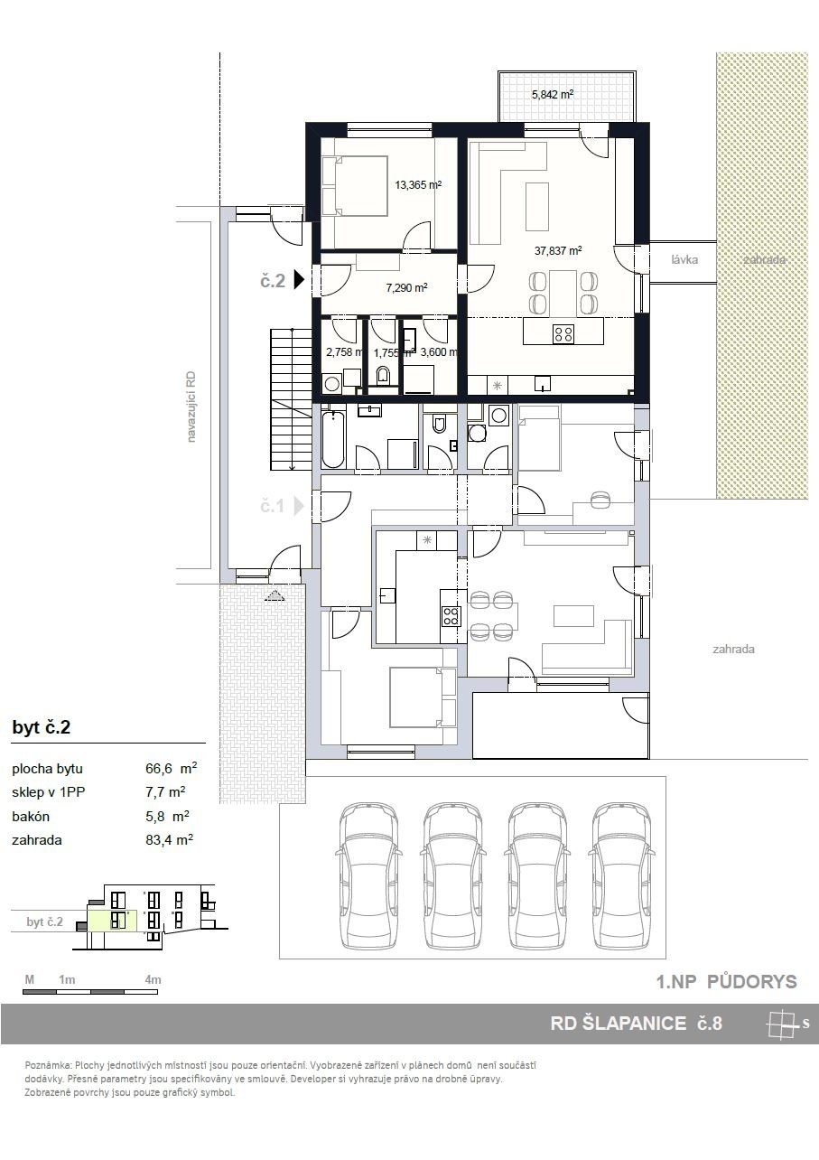
V rámci projektu Nové Šlapanice, který vyrůstá na začátku Šlapanic si Vám dovolujeme představit výjimečné a na danou lokalitu ojedinělé bydlení. Celý projekt je v nadstandartním provedení. Představujeme Vám 3.etapu, která je zaměřena na výstavbu viladomů. Každý viladům má 3 bytové jednotky a ateliér Je to ideální místo pro ty, kteří hledají kvalitní, moderní, prostorné a dispozičně chytře řešené bydlení. V tomto projektu nabízíme k prodeji byt 2+KK se zahradou a terasou. Součástí prodeje bytu je kuchyňská linka, dělaná na míru. K bytu náleží i sklep a 1 parkovací stání, které je součástí kupní ceny. V celém bytě jsou venkovní žaluzie. Možnost dokoupení dalšího parkovacího stání za 200.000,-Kč Viladům 8 na ulici Stanislava Hanzelky Byt č.2 je umístěn v 1.NP Dispozice: chodba 7,29m2, obývací pokoj s kuchyňským koutem 37,83m2 s přímým vstupem přes lávku na zahradu 83,4m2 a s balkonem 5,8m2, ložnice 13,36m2, koupelna se sprchovým koutem 3,6m2 a WC zvlášť 1,75m2 a technická místnost 2,75m2. Standarty bytu, které jsou součástí kupní ceny: - podlahy vinyl, keramická dlažba - sanitární technika, sprchový kout, včetně sprchového setu, umyvadlo včetně baterie, vana, závěsné WC, zrcadlo, obklady -mramor - interiérové dveře + obložkové zárubně, vstupní dveře - podlahové vytápění, topné těleso - příprava na klimatizaci Samotná lokalita nabízí širokou škálu pracovních možností a veškerou potřebnou občanskou vybavenost a výbornou dojezdnost díky dálnici D1 a D2. Také zde v docházkové vzdálenosti nalezneme školu, školku, řadu obchodů, restaurací a služeb, trolejbusovou zastávku, ale především vlakové nádraží, z kterého jste na Hlavním vlakovém nádraží v Brně za 15 min. Dokončení bytů je plánované na 3Q roku 2026. Výhodou je model financování nemovitosti. Pokud by Vás nabídka tohoto či jakéhokoliv jiného bytu v tomto projektu zaujala, kontaktujte prosím makléře, u kterého se dozvíte více. Děláme moderní bydlení dostupnější.



Nahoru