Prodej bytu 2+kk 72,4m2, Šlapanice
Makléř: Krejčí Jana
Telefon: 733 636 ...
E-mail: reality@ ...
Zobrazit celý kontaktTelefon: 733 636 380
E-mail: reality@janakrejci.com
prodej
00004
1 (dům má 2 podlaží)
osobní
80 m2
72 m2
G - Mimořádně nehospodárná
Makléř: Krejčí Jana
Telefon: 733 636 ...
E-mail: reality@ ...
Zobrazit celý kontaktTelefon: 733 636 380
E-mail: reality@janakrejci.com
Nemovitost nabízí
LUX Real s.r.o.
Řípská 1181/18, Brno
Zobrazit kontakt na RK733 636 380
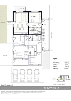
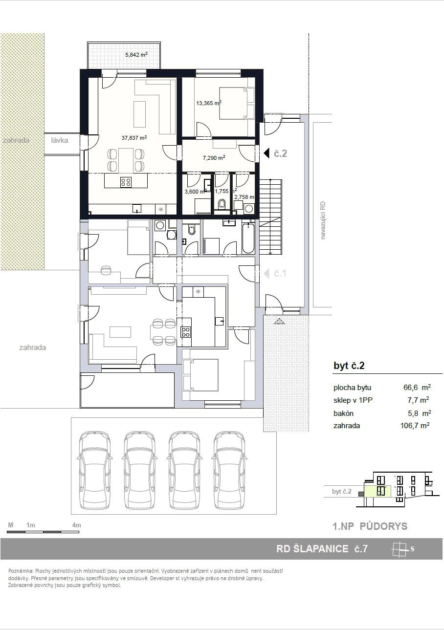
V rámci projektu Nové Šlapanice, který vyrůstá na začátku Šlapanic si Vám dovolujeme představit výjimečné a na danou lokalitu ojedinělé bydlení. Celý projekt je v nadstandartním provedení. Představujeme Vám 3.etapu, která je zaměřena na výstavbu 4 viladomů. Každý viladům má 3 bytové jednotky a ateliér. Je to ideální místo pro ty, kteří hledají kvalitní, moderní, prostorné a dispozičně chytře řešené bydlení. V tomto projektu nabízíme k prodeji byt 2+KK s balkonem 5,8m2, zahradou 106,7m2, sklepem 7,7m2 a 1 parkovacím stáním vše je součástí kupní ceny. Možnost dokoupení dalšího parkovacího stání za 300.000,-Kč První tři kupující v tomto projektu mají BONUS - KUCHYŃSKOU LINKU VČETNĚ VŠECH SPOTŘEBIČŮ Zn. ELECTROLUX V HODNOTĚ 650.000,-Kč ZDARMA. V celém bytě jsou venkovní žaluzie. Viladům 7 na ulici Stanislava Hanzla Byt č.2 je umístěn v 1.NP Dispozice: chodba 7,29m2, obývací pokoj s kuchyňským koutem 37,83m2 s přímým vstupem přes lávku na zahradu 106,7m2 a s balkonem 5,8m2, ložnice 13,36m2, koupelna se sprchovým koutem 3,6m2 a WC zvlášť 1,75m2 a technická místnost 2,75m2. Standarty bytu, které jsou součástí kupní ceny: - podlahy vinyl, keramická dlažba - sanitární technika, sprchový kout, včetně sprchového setu, umyvadlo včetně baterie, vana, závěsné WC, zrcadlo, obklady -mramor - interiérové dveře + obložkové zárubně, vstupní dveře - podlahové vytápění, topné těleso - klimatizace - venkovní osvětlení - rekuperace Samotná lokalita nabízí širokou škálu pracovních možností a veškerou potřebnou občanskou vybavenost a výbornou dojezdnost díky dálnici D1 a D2. Také zde v docházkové vzdálenosti nalezneme školu, školku, řadu obchodů, restaurací a služeb, trolejbusovou zastávku, ale především vlakové nádraží, z kterého jste na Hlavním vlakovém nádraží v Brně za 15 min. Dokončení bytů je plánované na 3Q roku 2026. Výhodou je model financování nemovitosti. Pokud by Vás nabídka tohoto či jakéhokoliv jiného bytu v tomto projektu zaujala, kontaktujte prosím makléře, u kterého se dozvíte více. Děláme moderní bydlení dostupnější.
Prodej bytu OV 2+kk - Pravlov - Brno - venkov - CP - 50,9m2 - novostavba
Nabízíme k prodeji novostavbu bytu v OV o velikosti 2+kk o výměře 50,9 m2, + půda nad bytem cca 16m2, který je součástí moderní novostavby domu se…
Byt, 2+kk, prodej, Starohorská, Oslavany, Brno-venkov
Nabízíme k prodeji útulný byt o dispozici 2+kk o celkové ploše 56m2 v klidné lokalitě Oslavan na ulici Starohorská. Byt zaujme především výhledem do…