Prodej bytu 3+kk, Praha 4 - Nusle
Makléř: Tereza Lev
Telefon: 739 262 ...
E-mail: lev@ulov ...
Zobrazit celý kontaktTelefon: 739 262 552
E-mail: lev@ulovdomov.cz
prodej
Táborská
N7098
06.01.2026
6 (dům má 7 podlaží)
osobní
101 m2
93 m2
G - Mimořádně nehospodárná
Makléř: Tereza Lev
Telefon: 739 262 ...
E-mail: lev@ulov ...
Zobrazit celý kontaktTelefon: 739 262 552
E-mail: lev@ulovdomov.cz
Nemovitost nabízí
Ideální nájemce
Lazaretní 925/9, 615 00 Brno
Zobrazit kontakt na RK222 703 030
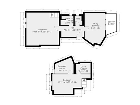
Ve výhradním zastoupení majitele nabízíme ke koupi jedinečný mezonetový byt 3+kk o podlahové ploše 92,5 m2. Nachází se v 6. a 7. nadzemním podlaží velmi dobře udržovaného činžovního domu s výtahem, který vede až do sklepního patra. Velkou výhodou domu je výborně fungující společenství vlastníků, které pracuje efektivně bez externí správcovské firmy. Díky tomu jsou provozní náklady domu dlouhodobě nižší a péče o budovu je na velmi dobré úrovni. Zděný zrekonstuovaný uzamykatelný sklep poskytuje praktický úložný prostor. Dispozice bytu: Celková výměra jednotky: 98,5 m2 (92,5 m2 byt + 6 m2 lodžie) + sklepní kóje 1. podlaží: Předsíň: 8 m2 Ložnice: 17 m2 Obývací pokoj s kuchyňským koutem: 33 m2 Koupelna: 4 m2 WC: 2 m2 Lodžie: 6 m2 2. podlaží: Galerie/ložnice: 18 m2 Koupelna s WC: 6 m2 Šatna/komora: 4,5 m2 Vybavení: Byt se prodává částečně vybavený. Součástí je nadstandardní kuchyňská linka se zabudovanými spotřebiči (indukční varná deska, elektrická trouba, mikrovlnná trouba, myčka, lednice a digestoř). V bytě dále zůstává mimo jiného jídelní stůl a židle, křeslo, rozkládací kožená sedačka, skříně, pracovní stůl, konferenční stolek, pračka, manželská postel a vestavěné úložné prvky na míru s integrovaným LED osvětlením. Centrální ovladač vytápění umožňuje pohodlné nastavení teploty z jednoho místa. Lokalita: Dům je situován vedle tramvajové zastávky Palouček, která zajišťuje perfektní dopravní dostupnost do centra města. Stanice metra Pražského povstání (C) je vzdálena pouze 2 minuty jízdy tramvají, stanice metra Karlovo náměstí (B) 10 minut. Za 10 minut pěšky se dostanete i na metro C Vyšehrad. V blízkém okolí je veškerá občanská vybavenost - kavárny, restaurace, potraviny, školky, školy, dětská hřiště, fitness centrum, kadeřnictví, obchody a také oblíbené pražské parky Folimanka a Jezerka. Byt je aktuálně pronajatý prověřeným nájemníkům, kteří zde žijí 2 roky. Mají platnou nájemní smlouvu na dobu určitou do 31.3.2026. PENB není vyhotoven. Ráda vás nemovitostí provedu osobně a zodpovím všechny vaše dotazy. Tereza Lev Certifikovaná realitní makléřka
Prodej, Byt 3+kk, Praha 10
Na prodej nabízíme prostorný byt 3+kk o celkové ploše 135 m2 v atraktivní lokalitě Praha - Uhříněves, ulice Ingrišova. Byt se nachází ve 3. podlaží…
Prodej bytu 3kk (115,8 m), terasa 25,7, Praha Vinohrady - Vinohradská
Prodej reprezentativního zcela nového bytu po kompletní renovaci 3kk (115,8 m) s terasou 25,72 a sklepní kójí, se zachovanými původními prvky v…