Novostavba bytu 2kk - Plzeň Skvrňany
Makléř: Kantner Jan
Telefon: 739 367 ...
E-mail: kantner@ ...
Zobrazit celý kontaktTelefon: 739 367 279
E-mail: kantner@pubec.cz
prodej
Na Okraji
21300JK-8
1 (dům má 0 podlaží)
osobní
55 m2
55 m2
B - Velmi úsporná
Makléř: Kantner Jan
Telefon: 739 367 ...
E-mail: kantner@ ...
Zobrazit celý kontaktTelefon: 739 367 279
E-mail: kantner@pubec.cz
Nemovitost nabízí
REALITNÍ KANCELÁŘ PUBEC, s.r.o.
Šafaříkovy sady 2455/5, 301 00 Plzeň
Zobrazit kontakt na RK377 226 767
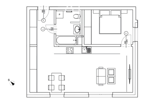
Máme pro Vás připraven nový projekt pod názvem „Byty Na Okraji“. Předmětná jednotka 2kk o výměře 55 m2 se bude nacházet ve zvýšeném přízemí (okna ca 2 metry nad terénem) cihelného domu s výtahem. Orientace bytu - jih, vnitroblok. Dům bude situován v lokalitě Předních Skvrňan a nabídne klidné místo spojené s dobrou dostupností centra města i nájezdu na páteřní infrastrukturu. Půjde o menší bytový dům zasazený do původní zástavby v ulici Na Okraji. Složen bude výhradně z bytových jednotek. Půjde zejména o malometrážní byty (1kk, 2kk) s podlahovou plochou od cca 30 m2 až do 60 m2. V ceně bytu bude dokončení v daném standardu (bez kuchyňské linky a finálního osvětlení). Prezentované vizualizace se zařízením jsou pouze ilustrativní. Bytový dům je projektován jako nízkoenergetický, energetická třída B. Náklady na Vaše nové bydlení budou velmi nízké, což jistě v budoucnosti oceníte. Vytápění bude řešeno dálkově (Plzeňská Teplárna). K tomuto konkrétnímu bytu lze ještě dokoupit garážové parkovací stání (není povinnost). Výstavba zahájena, předpokládané dokončení červen 2027. Pro bližší informace mne neváhejte kontaktovat.
Prodej, byty/2+kk, 55 m2, Železná 3057/4, 30100 Plzeň, Plzeň-město [ID 83377]
Prodej bytu 2+kk s lodžií a balkonem Triangl Park Bory, Plzeň Nabízíme k prodeji byt o dispozici 2+kk a podlahové ploše 49,15 m s lodžií a balkonem…
Prodej zrekonstruovaného a plně vybaveného bytu 2+kk, 52 m2, Plzeň-Východní Předměstí
Naše společnost Vám nabízí prodej zrekonstruovaného a plně vybaveného bytu o dispozici 2+kk a o celkové ploše cca 52 m2, nacházejícího se ve 3. NP…