Novostavba bytu 1+kk s balkonem - Plzeň Skvrňany
Makléř: Kantner Jan
Telefon: 739 367 ...
E-mail: kantner@ ...
Zobrazit celý kontaktTelefon: 739 367 279
E-mail: kantner@pubec.cz
prodej
Na Okraji
21300JK-9
1 (dům má 0 podlaží)
osobní
50 m2
50 m2
B - Velmi úsporná
Makléř: Kantner Jan
Telefon: 739 367 ...
E-mail: kantner@ ...
Zobrazit celý kontaktTelefon: 739 367 279
E-mail: kantner@pubec.cz
Nemovitost nabízí
REALITNÍ KANCELÁŘ PUBEC, s.r.o.
Šafaříkovy sady 2455/5, 301 00 Plzeň
Zobrazit kontakt na RK377 226 767
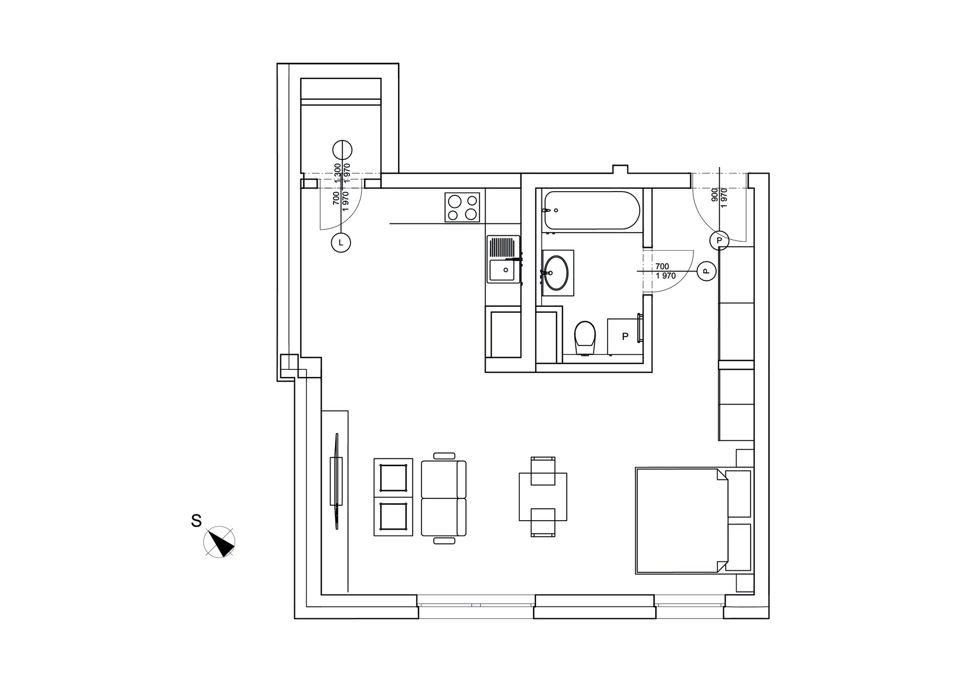
Máme pro Vás připraven nový projekt pod názvem „Byty Na Okraji“. Předmětná jednotka 1+kk o výměře 50 m2 se bude nacházet ve zvýšeném přízemí (okna ca 2 metry nad terénem) cihelného domu s výtahem. Orientace bytu - jih, vnitroblok. Předpokládaný výhled z balkonu - viz foto dron. Dům bude situován v lokalitě Předních Skvrňan a nabídne klidné místo spojené s dobrou dostupností centra města i nájezdu na páteřní infrastrukturu. Půjde o menší bytový dům zasazený do původní zástavby v ulici Na Okraji. Složen bude výhradně z bytových jednotek. Půjde zejména o malometrážní byty (1kk, 2kk) s podlahovou plochou od cca 30 m2 až do 60 m2. V ceně bytu bude dokončení v daném standardu (bez kuchyňské linky a finálního osvětlení). Prezentované vizualizace se zařízením jsou pouze ilustrativní. Bytový dům je projektován jako nízkoenergetický, energetická třída B. Náklady na Vaše nové bydlení budou velmi nízké, což jistě v budoucnosti oceníte. Vytápění bude řešeno dálkově (Plzeňská Teplárna). Výstavba zahájena, předpokládané dokončení červen 2027. Pro bližší informace mne neváhejte kontaktovat.
Prodej, byty/1+kk, 32.57 m2, Kovářská 330/10, Jižní Předměstí, 30100 Plzeň 3 [ID 80547]
Hledáte novostavbu v centru Plzně, kde budete mít město doslova po ruce? Nabízíme exkluzivně byt 1+kk v rezidenčním projektu Rezidence Kovářská /…
Rekonstruovaný byt 1+kk s komorou v centru Plzně - Pařížská ulice
Nabízíme k prodeji rekonstruovanou bytovou jednotku o podlahové ploše 41,2 m2 s dispozicí 1+kk v 6. nadzemním podlaží činžovního domu s výtahem v…