Prodej, Byt 1+kk, České Budějovice
Makléř: Vladimír Nýdl
Telefon: 775 036 ...
E-mail: vladimir ...
Zobrazit celý kontaktTelefon: 775 036 775
E-mail: vladimir.nydl@kuzopartners.cz
prodej
České Budějovice (okres České Budějovice)
Rudolfovská tř.
22215
18.02.2026
2 (dům má 3 podlaží)
osobní
42 m2
42 m2
C - Úsporná
Makléř: Vladimír Nýdl
Telefon: 775 036 ...
E-mail: vladimir ...
Zobrazit celý kontaktTelefon: 775 036 775
E-mail: vladimir.nydl@kuzopartners.cz
Nemovitost nabízí
Vladimír Nýdl KUZO Partners
Zobrazit kontakt na RK
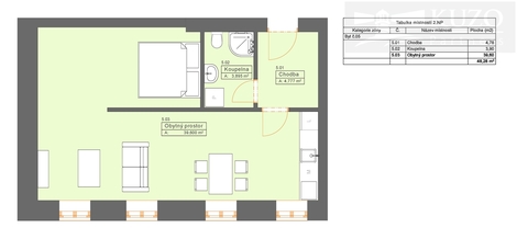
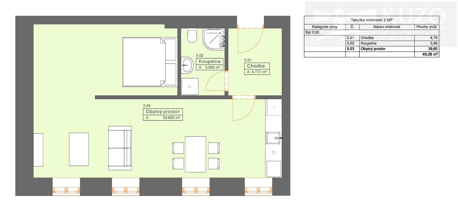
Nové byty v 1. patře cihlové rezidence! Prodej bytů v novém komorním projektu. Nabízíme vám jedinečnou příležitost vybrat si z nových bytů umístěných v 1. patře a zajistit si tak investici s vysokým potenciálem zhodnocení ještě před dokončením stavby. Výstavba je v plném proudu a předpokládaný termín dokončení je stanoven do konce dubna 2026 (v případě, že nenastanou nepředvídatelné komplikace). Pro koho jsou byty ideální? Pro investory: byt je ideální pro uložení financí s následným pronájmem. Pro páry i jednotlivce: byty (42 a 48 m2) nabízejí dostatek prostoru pro komfortní život, stále však s nízkými provozními náklady novostavby. Startovací bydlení: Skvělá příležitost pořídit si první vlastní nemovitost v kvalitním cihlovém domě. Aktuální nabídka volných bytů v 1. patře: Buďte první, kdo si vybere dispozici, která nejlépe odpovídá vašim představám: Byt č. 6 - výměra 42 m2 + terasa 14m2 - cena 4.990.000 Kč (k dispozici také byt v prvním patře č. 5 - výměra 48 m2, byt 1+kk 36m2 v přízemí a byty v podkroví 2+kk byt č.9 (42,83m2) , byt č. 10 - dispozice 1+kk s velkou ložnicí v nice téměř 2+kk (41,36 m2).) Všechny ceny jsou konečné a zahrnují kompletní právní servis i provizi RK. Platební podmínky: 30 % ceny splatných po rezervaci, 70 % po podpisu Kupní smlouvy (lze individuálně domluvit podmínky). Klíčové parametry projektu: Konstrukce: Poctivý cihlový dům zaručující skvělé tepelně-izolační vlastnosti a dlouhou životnost. PENB: Energetická náročnost budovy: Třída C - Úsporná. Parkování: Aktuálně se řeší možnost parkování na soukromém parkovišti u domu (celkem 5 míst). Platí do vyprodání volných míst. Lokalita, která má vše: Byty se nachází ve strategicky výhodné lokalitě, která kombinuje klid s perfektní dostupností. Centrum obce: Pouhých 500 metrů, tedy pár minut chůze. Dopravní dostupnost: Vlakové nádraží vzdálené jen 400 metrů. Proč investovat právě teď? Koupě nemovitosti ve fázi výstavby s sebou přináší nejlepší výběr a jistotu zhodnocení investice ihned po kolaudaci. Buďte o krok napřed. Získejte kompletní informace: Zaujala Vás tato nabídka? Pro bližší informace, detailní podklady k jednotlivým bytům a domluvení osobní schůzky neváhejte kontaktovat naši realitní kancelář. Domluvte si schůzku a vyberte si ten nejlepší byt pro své plány! ________________________________________ Upozornění: Fotografie označené hvězdičkou (*) v pravém dolním rohu jsou vizualizovány pomocí umělé inteligence a slouží pouze pro ilustraci možného budoucího stavu.
Prodej, Byt 1+kk, České Budějovice
Nové byty v 1. patře cihlové rezidence! Prodej bytů v novém komorním projektu. Nabízíme vám jedinečnou příležitost vybrat si z nových bytů…
Prodej, Byt 1+kk, České Budějovice
Tým Bartlgroup vám představujeme nový Rezidenční projekt U Stromovky, který přináší do Českých Budějovic novou úroveň moderního a úsporného bydlení.…