Prodej, Byt 1+kk, České Budějovice
Makléř: Vladimír Nýdl
Telefon: 775 036 ...
E-mail: vladimir ...
Zobrazit celý kontaktTelefon: 775 036 775
E-mail: vladimir.nydl@kuzopartners.cz
prodej
České Budějovice (okres České Budějovice)
Rudolfovská tř.
22012
18.02.2026
1 (dům má 3 podlaží)
osobní
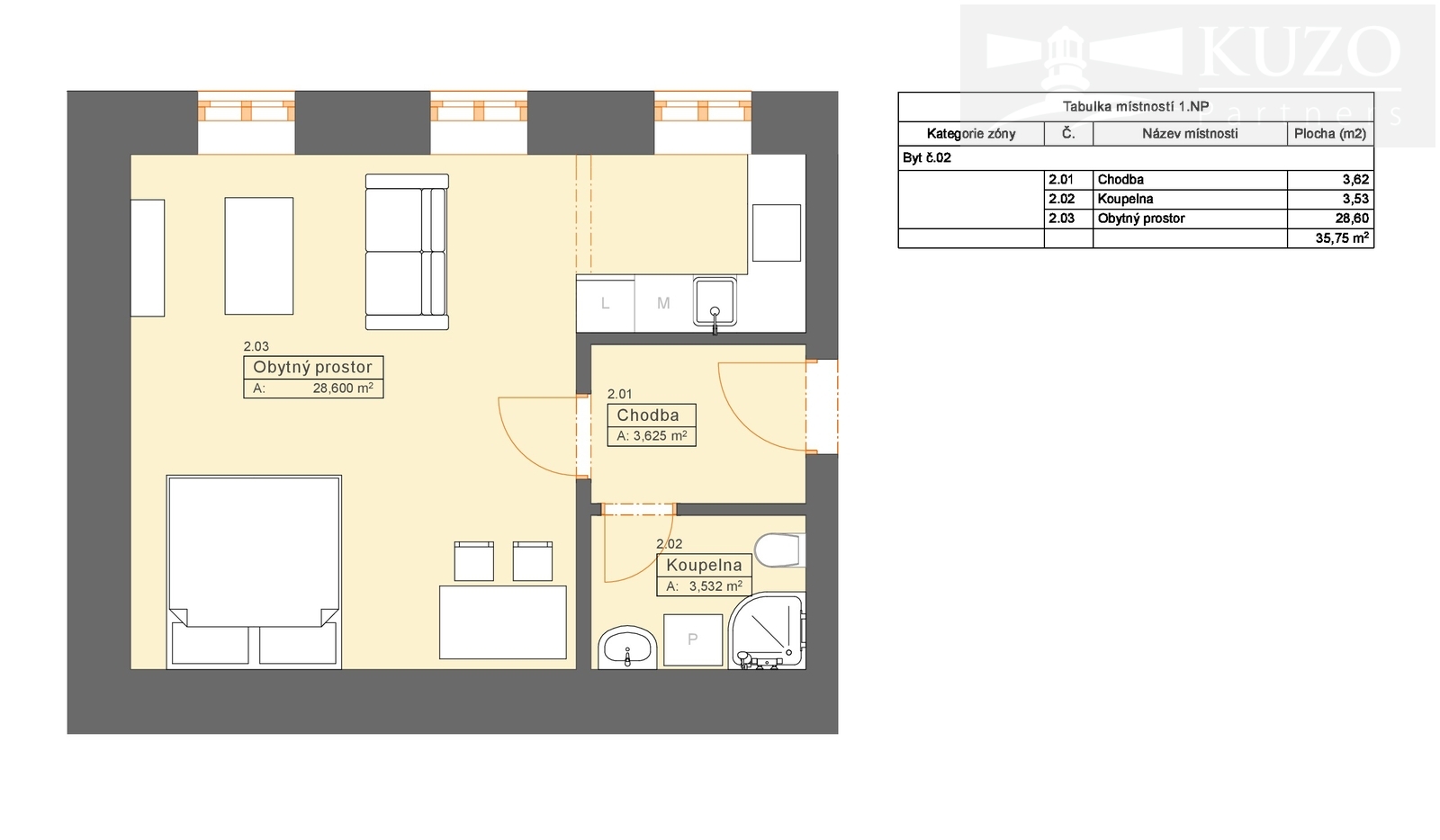
36 m2
36 m2
C - Úsporná
Makléř: Vladimír Nýdl
Telefon: 775 036 ...
E-mail: vladimir ...
Zobrazit celý kontaktTelefon: 775 036 775
E-mail: vladimir.nydl@kuzopartners.cz
Nemovitost nabízí
Vladimír Nýdl KUZO Partners
Zobrazit kontakt na RK
Investiční byt 1+kk 35,84 m2 v nové cihlové rezidenci! Prodej bytů v novém komorním projektu. Nabízíme vám jedinečnou příležitost být mezi prvními a zajistit si tak investici s vysokým potenciálem zhodnocení ještě před dokončením stavby. Výstavba je v plném proudu a předpokládaný termín dokončení je stanoven na konec dubna 2026 (v případě, že nenastanou nepředvídatelné komplikace). Pro koho je projekt ideální? • Pro investory: Dispozice 1+kk je na trhu s pronájmy dlouhodobě nejžádanější. Získáte tak nemovitost, která si na sebe dokáže efektivně vydělávat. • Pro jednotlivce a páry: Perfektní startovací bydlení s nízkými provozními náklady v novostavbě. • Pro seniory: Umístění ve zvýšeném přízemí zajišťuje pohodlný a téměř bezbariérový přístup. Úvodní nabídka bytů k prodeji: Buďte první, kdo si vybere byt, který nejlépe odpovídá vašim představám a investičnímu záměru: • Byt o výměře 35,84 m2 - cena 3.450.000 Kč Všechny ceny jsou konečné a zahrnují kompletní právní servis i provizi RK. 30% ceny platba po rezervaci, 70% po podpisu Kupní smlouvy (lze individuálně domluvit podmínky). Klíčové parametry projektu: • Konstrukce: Poctivý cihlový dům zaručující skvělé tepelně-izolační vlastnosti a dlouhou životnost. • Parkování: Aktuálně se řeší možnost parkování 5 míst u domu na soukromém parkovišti, prodej samostatně dle dohody, platí do vyprodání volných míst. • PENB: Energetická náročnost budovy: Třída C - Úsporná. Lokalita, která má vše: Byty se nachází ve strategicky výhodné lokalitě, která kombinuje klid s perfektní dostupností. • Centrum obce: Pouhých 500 metrů, tedy pár minut chůze. • Dopravní dostupnost: Vlakové nádraží vzdálené jen 400 metrů. Proč investovat právě teď? Koupě nemovitosti v úvodní fázi prodeje s sebou přináší nejlepší výběr a jistotu zhodnocení investice ihned po kolaudaci. Buďte o krok napřed. Získejte kompletní informace: Zaujala Vás tato nabídka? Pro bližší informace, detailní podklady k projektu a domluvení osobní schůzky neváhejte kontaktovat naši realitní kancelář. Domluvte si schůzku a buďte mezi prvními, kdo si vybere nejlepší byt pro své plány! ________________________________________ Upozornění: Fotografie označené hvězdičkou (*) v pravém dolním rohu jsou vizualizovány pomocí umělé inteligence a slouží pouze pro ilustraci možného budoucího stavu.
Prodej, Byt 1+kk, České Budějovice
Tým Bartlgroup vám představujeme nový Rezidenční projekt U Stromovky, který přináší do Českých Budějovic novou úroveň moderního a úsporného bydlení.…
Prodej, Byt 1+kk, České Budějovice
Nové byty v 1. patře cihlové rezidence! Prodej bytů v novém komorním projektu. Nabízíme vám jedinečnou příležitost vybrat si z nových bytů…